【2000WOG内螺纹球阀】瑞濠品牌.质量保证,瑞濠阀业全方面介绍2000WOG内螺纹球阀相关标准、选型、作用、结构图、规格型号;外形尺寸、工作原理、安装维护及球阀产品说明书;为广大用户提供高品质、高性能、高标准、高寿命、价格优惠的系列2000WOG内螺纹球阀。
|
2000WOG内螺纹球阀概述:
|
|
2000WOG内螺纹球阀阀体铸造采用硅胶工艺,结构合理、造型美观。2000WOG内螺纹球阀阀座采用弹性密封结构,密封可靠,启闭轻松。 阀杆采用有倒密封的下装式结构,阀腔异常升压时,阀杆不会被冲出。适用于 PN1.0~12.5MPa,工作温度 -29~180℃(密封圈为增强聚四氟乙烯)或 -29~300℃(密封圈为对位聚苯)的各种管路上,2000WOG内螺纹球阀用于截断或接通管路中的介质,选用不同的材质,可分别适用于水、蒸汽、油品、硝酸、醋酸等多种介质。
|
|
|
|
2000WOG内螺纹球阀设计特点:
|
2000WOG球阀根据标准ASME B16.34设计
结构简单,密封性能好,扭矩小
全通径设计
低泄露填料
|
|
|
|
2000WOG内螺纹球阀产品范围:
|
阀体材料:不锈钢304,316
口径:1/4"~2"(DN6~DN50)
连接方式:内螺纹BSP,BSPT,NPT
压力范围:2000PSI
工作温度:-20℃ - +180℃
|
|
|
|
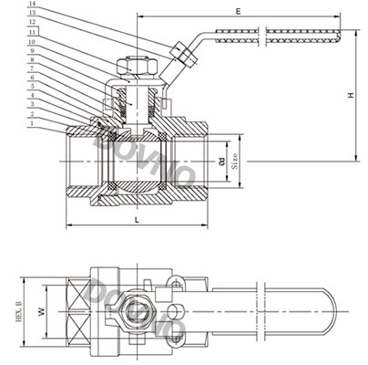
2000WOG内螺纹球阀外形尺寸图:
|

|
|
|
|
2000WOG内螺纹球阀主要材料表:
|
|
序号
|
名称
|
材质
|
|
ANSI/JIS/DIN
|
ANSI/JIS/DIN
|
ANSI/JIS/DIN
|
|
1
|
阀盖
|
A351-CF8M/SCS14A/1.4408
|
A351-CF8/SCS13A/1.4308
|
A216-WCB/SCPH2/1.0619
|
|
2
|
阀座
|
PTFE/RPTFE/PPL
|
|
3
|
球体
|
SUS316
|
SUS304
|
|
4
|
密封圈
|
PTFE/RPTFE/PPL
|
|
5
|
阀体
|
A351-CF8M/SCS14A/1.4408
|
A351-CF8/SCS13A/1.4308
|
A216-WCB/SCPH2/1.0619
|
|
6
|
止推垫
|
PTFE/RPTFE
|
|
7
|
填料
|
PTFE/RPTFE/PPL
|
|
8
|
阀杆
|
SUS316
|
SUS304
|
|
9
|
填料压盖
|
SUS304
|
|
10
|
手柄
|
SUS304
|
|
11
|
六角螺母
|
A194-8
|
|
12
|
弹性垫片
|
SUS304
|
|
13
|
锁片
|
SUS201
|
|
14
|
手柄插销
|
PVC
|
|
|
|
|
2000WOG内螺纹球阀外形尺寸表:
|
|
序号
|
d
|
L
|
H
|
E
|
W
|
六角
|
螺纹端
|
|
1/4"
|
10.5
|
55
|
56
|
100
|
29
|
21
|
NPT、MPT、BSPT、BSP、DIN、PT、etc...
|
|
3/8"
|
10.5
|
55
|
56
|
100
|
29
|
25
|
|
1/2"
|
15
|
63
|
65.5
|
120
|
29
|
31
|
|
3/4"
|
20
|
74.5
|
72
|
150
|
33
|
36.5
|
|
1"
|
25
|
87.5
|
81
|
170
|
33
|
43
|
|
1-1/4"
|
32
|
102
|
88
|
170
|
38
|
52
|
|
1-1/2"
|
38
|
107
|
97
|
190
|
38
|
60
|
|
2"
|
48
|
124
|
121
|
190
|
38
|
72
|
|
2000WOG内螺纹球阀适用于 PN1.0~12.5MPa,工作温度 -29~180℃(密封圈为增强聚四氟乙烯)或 -29~300℃(密封圈为对位聚苯)的各种管路上,2000WOG内螺纹球阀用于截断或接通管路中的介质,选用不同的材质,可分别适用于水、蒸汽、油品、硝酸、醋酸等多种介质。

·2000WOG内螺纹球阀质保体系:
有了您的信任与支持,我们提供值得信赖的Ruihao品牌产品,我们支持一系列的系统技术参数、技术指导、文件支持,实行质量跟踪、客户档案、售后保障。
·2000WOG内螺纹球阀产品标准:
我们的产品按国际及国内相关标准验收,产品实行"全程跟踪"服务;随货提供"铭牌""质量证明""质保卡",产品带有"说明书""检验报告"等相关说明。
·2000WOG内螺纹球阀解决方案:
瑞濠公司为工业系统和水力提供的整体方案,我们专注产品质量,把握每一个产品细节全程控制; 不仅为用户解决需求,还保障了控制系统运行可靠性,减少系统的故障及维护,不懈努力的为用户提供高品质、高性能的产品。
·2000WOG内螺纹球阀售后保障:
瑞濠公司实行完善的用户档案和全程服务制度,每个用户都进行全程免费技术咨询、安装指导、跟踪服务以及相关咨询服务。
瑞濠公司的阀门产品实行"三包"服务,货物到现场提供相应技术指导支持; 质保期实行12个月到24个月不等。
·2000WOG内螺纹球阀订购说明:
1.阀门产品:如有指定型号标准,请直播销售热线咨询价格,了解详情!
2.技术支持:如没有指定产品型号规格,请把工况要求、设计图纸、技术规范,发送传真或邮件至本公司。
3.产品订货参数:通径(DN),公称压力(Mpa),温度(℃),连接方式(螺纹、法兰、对夹等)。
4.产品驱动方式:手动、蜗轮、气动、电动等。
5.产品标准:国标GB、日标JIS、美标ANSI、德标DIN、英标BS、欧标EN等。
6.报价确认:本公司提供报价清单及技术标准说明至客户确认,在双方技术各方面确认后再拟定合同。
7.阀门质量要求、质量标准、供方对质量负责的条件:按有关质量标准。