【
二片式螺纹球阀】瑞濠品牌.质量保证,瑞濠阀业全方面介绍
2000WOG二片式螺纹球阀相关标准、选型、作用、结构图、规格型号;外形尺寸、工作原理、安装维护及产品说明书;为广大用户提供高品质、高性能、高标准、高寿命、价格优惠的系列二片式螺纹球阀。
|
二片式螺纹球阀产品概述:
|
|
二片式螺纹球阀用二片式分体式结构设计,球阀具有防火结构,球体与球体之间带防静电装置;阀杆防爆出设计;有双层阀杆填料符合阀杆泄露测试要求;双碟形弹片自动压紧填料设计;2000WOG二片式螺纹球阀适用于 PN1.0~12.5MPa,工作温度 -29~180℃(密封圈为增强聚四氟乙烯)或-29~300℃(密封圈为对位聚苯)的各种管路上,用于截断或接通管路中的介质,2000WOG二片式球阀选用不同的材质,可分别适用于水、蒸汽、油品、硝酸、醋酸等多种介质。
|
|
|
|
二片式螺纹球阀产品特点:
|
二片式螺纹球阀体采用精铸工艺,结构合理、造型美观。阀座采用弹性密封结构,密封可靠,启闭轻松。 阀杆采用有倒密封的下装式结构,阀腔异常升压时,阀杆不会被冲出。
二片式球阀连接形式另有对焊(BW)承插焊(SW),并均可带国际标准ISO支架平台和锁定装置。可设置90°开关定位机构,根据需要加锁以防止误操作,球阀驱动方式:手动、电动、气动。
|
|
|
|
二片式螺纹球阀设计标准:
|
防爆中轴
设计和制造标准按照: ASME B16.34;
螺纹标准按照:ASME B1.20.1,BS21
DIN 2999/259,ISO 228/1;JIS B 0203,ISO 7/1
壁厚标准:ASME B16.34
检验和测试按照T: MSS SP-110,EN 12266;
|
|
|
|
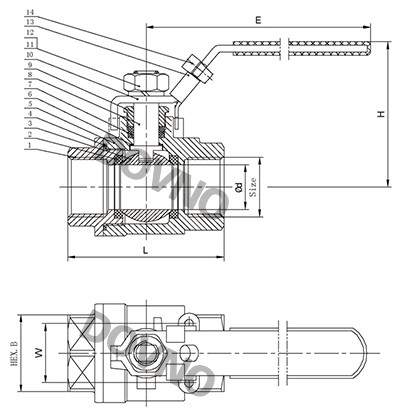
二片式螺纹球阀尺寸图:
|
|
|
|
|
二片式螺纹球阀主要材料表:
|
|
序号
|
名称
|
材质
|
|
ANSI/JIS/DIN
|
ANSI/JIS/DIN
|
ANSI/JIS/DIN
|
|
1
|
阀盖
|
A351-CF8M/SCS14A/1.4408
|
A351-CF8/SCS13A/1.4308
|
A216-WCB/SCPH2/1.0619
|
|
2
|
阀座
|
PTFE/RPTFE/PPL
|
|
3
|
球体
|
SUS316
|
SUS304
|
|
4
|
密封圈
|
PTFE/RPTFE/PPL
|
|
5
|
阀体
|
A351-CF8M/SCS14A/1.4408
|
A351-CF8/SCS13A/1.4308
|
A216-WCB/SCPH2/1.0619
|
|
6
|
止推垫
|
PTFE/RPTFE
|
|
7
|
填料
|
PTFE/RPTFE/PPL
|
|
8
|
阀杆
|
SUS316
|
SUS304
|
|
9
|
填料压盖
|
SUS304
|
|
10
|
手柄
|
SUS304
|
|
11
|
六角螺母
|
A194-8
|
|
12
|
弹性垫片
|
SUS304
|
|
13
|
锁片
|
SUS201
|
|
14
|
手柄插销
|
PVC
|
|
|
|
|
二片式螺纹球阀外形尺寸图表:
|
|
单位:mm
|
|
序号
|
d
|
L
|
H
|
H1
|
E
|
螺纹端
|
|
1/2"
|
15
|
62
|
60
|
27
|
98
|
NPT、MPT、BSPT、BSP、DIN、PT、etc...
|
|
3/4"
|
20
|
70
|
67
|
30.5
|
120
|
|
1"
|
25
|
81
|
70
|
33.5
|
120
|
|
1-1/4"
|
32
|
96
|
82
|
42
|
150
|
|
1-1/2"
|
38
|
105
|
91
|
46.5
|
170
|
|
2"
|
48
|
120
|
100
|
56.5
|
170
|
|
2-1/2"
|
65
|
138
|
125
|
72.5
|
250
|
|
3"
|
78
|
170
|
142
|
89
|
250
|
|
4"
|
100
|
205
|
163
|
102.5
|
300
|
|
二片式螺纹球阀主体材料采用不锈钢材料制作,广泛应用于化工、石油、电力、制药、啤酒、食品、乳品饮料、化妆品及工程配套工业管路等领域。二片式球阀外表美观,大方,耐腐蚀,耐高温,耐高压的优点,应用范围相当广。

·二片式螺纹球阀质保体系:
有了您的信任与支持,我们提供值得信赖的Ruihao品牌产品,我们支持一系列的系统技术参数、技术指导、文件支持,实行质量跟踪、客户档案、售后保障。
·二片式螺纹球阀产品标准:
我们的产品按相关标准验收,产品质量实行"售后跟踪"服务;随货提供"铭牌""质量证明""质保卡",产品并带有"说明书""检验报告"等相关说明。
·二片式螺纹球阀解决方案:
瑞濠公司为工业系统和水力提供的整体方案,我们专注产品质量,把握每一个生产细节全程控制; 不仅为用户解决需求,还保障了控制系统运行可靠性,减少系统的故障及维护,不懈努力的为用户提供高品质、高性能的产品。
·二片式螺纹球阀售后保障:
瑞濠公司实行完善的用户档案和全程服务制度,每个用户都进行全程免费技术咨询、安装指导、跟踪服务以及相关咨询服务。
瑞濠公司的阀门产品实行"三包"服务,货物到现场提供相应技术指导支持; 质保期实行12个月到24个月不等。
·二片式螺纹球阀订购说明:
1.阀门产品:如有指定型号标准,请直播销售热线咨询价格,了解详情!
2.技术支持:如没有指定产品型号规格,请把工况要求、设计图纸、技术规范,发送传真或邮件至本公司。
3.产品订货参数:通径(DN),公称压力(Mpa),温度(℃),连接方式(螺纹、法兰、对夹等)。
4.产品驱动方式:手动、蜗轮、气动、电动等。
5.产品标准:国标GB、日标JIS、美标ANSI、德标DIN、英标BS、欧标EN等。
6.阀门报价确认:本公司提供报价清单及技术标准说明至客户确认,在双方技术各方面确认后再拟定合同。
7.阀门质量要求、质量标准、供方对质量负责的条件:按有关质量标准。