【三片式球阀】瑞濠品牌.质量保证,瑞濠业全方面介绍三片式球阀相关标准、选型、作用、结构图、规格型号;外形尺寸、工作原理、安装维护及产品说明书;为广大用户提供高品质、高性能、高标准、高寿命、价格优惠的系列三片式球阀。
|
三片式球阀产品简述:
|
|
三片式球阀采用三部分体式设计,阀腔为全通径,球阀由两边带颈法兰夹住,承受压力好,密封性能可靠,安装方便,易拆卸维修和清洗;该球阀广泛应用于石油、化工液体、气体管路做切断使用。
|
|
|
|
三片式球阀产品特点:
|
三片式球阀是球阀结构中常见的一种,阀体分为三部分,左右为副阀体,中间为主阀体。主副阀体通过螺栓连接起来,安装和拆卸比较方便,在浮动式球阀和固定式球阀中都有使用三片式结构。
三片式球阀可以按照ISO5211标准,采用高平台球阀结构。与气动执行器或电动执行器组成气动三片式球阀或电动三片式球阀。安装和维护比较方便;球体流道尺寸比一片式球阀球体流道尺寸大,流通能力强。
|
|
|
|
三片式球阀产品标准:
|
球阀防爆中轴/全流
设计和制造标准按照: ASME B16.34,API608;
结构长度按照 : ASME B16.10;
法兰端尺寸按照:ASME B16.5;
检验和测试按照: API598;
防火设计测试:API607;
|
|
|
|
三片式球阀结构图:
|
|
|
|
|
三片式球阀材料表:
|
|
名称
|
材质
|
|
ANSI/JIS/DIN
|
ANSI/JIS/DIN
|
ANSI/JIS/DIN
|
|
阀体
|
A351-CF8M/SCS14A/1.4408
|
A351-CF8/SCS13A/1.4308
|
A216-WCB/SCPH2/1.0619
|
|
阀盖
|
A351-CF8M/SCS14A/1.4408
|
A351-CF8/SCS13A/1.4308
|
A216-WCB/SCPH2/1.0619
|
|
球
|
SUS316
|
SUS304
|
|
六角螺母
|
A194-8
|
|
弹性垫片
|
SUS304
|
|
密封圈
|
PTFE/VITON
|
|
阀座
|
PTFE/RPTFE/PPL
|
|
阀杆
|
SUS316
|
SUS304
|
|
O型圈
|
FKM(VITON)
|
|
止推垫
|
PTFE/RPTFE
|
|
填料
|
PTFE/GRAFOIL
|
|
蝶簧
|
SUS304
|
|
阀杆螺母
|
SUS304
|
|
填料压盖
|
SUS304
|
|
手柄
|
SUS201
|
|
定位杆
|
SUS304
|
|
内六角圆柱头螺钉
|
SUS304
|
|
六角螺母
|
A194-8
|
|
双头螺栓
|
SA193-B8
|
|
|
|
|
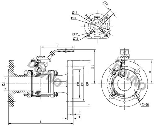
三片式球阀外形尺寸图:
|
|
|
|
|
三片式球阀主要连接尺寸:
|
|
单位:mm
|
|
Size
|
LBS
|
d
|
L
|
R
|
C
|
D
|
H
|
H1
|
E
|
F
|
T
|
□P
|
Ød1
|
Ød2
|
ØC1
|
ØC2
|
N
|
ØX
|
ISO 5211
|
|
1/2"
|
300
|
15
|
140
|
34.5
|
66.7
|
95
|
48
|
76
|
110
|
2
|
14.3
|
9
|
42
|
36
|
6
|
6
|
4
|
16
|
F03-F04
|
|
3/4"
|
300
|
20
|
152
|
42.9
|
82.6
|
115
|
54
|
80
|
110
|
2
|
15.9
|
9
|
42
|
36
|
6
|
6
|
4
|
19
|
F03-F04
|
|
1"
|
300
|
25
|
165
|
50.8
|
88.9
|
125
|
60
|
90
|
160
|
2
|
17.5
|
11
|
50
|
42
|
7
|
6
|
4
|
19
|
F04-F05
|
|
1-1/4"
|
300
|
32
|
178
|
63.5
|
98.4
|
135
|
71
|
102
|
160
|
2
|
19.1
|
11
|
50
|
42
|
7
|
6
|
4
|
19
|
F04-F05
|
|
1-1/2"
|
300
|
38
|
190
|
73
|
114.3
|
155
|
77.5
|
114
|
185
|
2
|
20.7
|
14
|
70
|
50
|
9
|
7
|
4
|
23
|
F05-F07
|
|
2"
|
300
|
50
|
216
|
92.1
|
127
|
165
|
85
|
122
|
185
|
2
|
22.3
|
14
|
70
|
50
|
9
|
7
|
8
|
19
|
F05-F07
|
|
2-1/2"
|
300
|
65
|
241
|
104.8
|
149.2
|
190
|
98
|
168
|
305
|
2
|
25.4
|
17
|
102
|
70
|
11
|
9
|
8
|
23
|
F07-F10
|
|
3"
|
300
|
78
|
282
|
127
|
168.3
|
210
|
110
|
178
|
305
|
2
|
28.6
|
17
|
102
|
70
|
11
|
9
|
8
|
23
|
F07-F10
|
|
4"
|
300
|
100
|
305
|
157.2
|
200
|
255
|
130
|
198
|
305
|
2
|
31.8
|
22
|
102
|
70
|
11
|
9
|
8
|
23
|
F07-F10
|
|
5"
|
300
|
125
|
400
|
185.7
|
235
|
280
|
165
|
234
|
500
|
2
|
35
|
27
|
125
|
102
|
14
|
12
|
8
|
23
|
F12-F14
|
|
三片式球阀的主要特点是本身结构紧凑,易于操作和维修,球阀适用于水、溶剂、酸和天然气等一般工作介质,三片式球阀而且还适用于工作条件恶劣的介质,如氧气过氧化氢,甲烷和乙烯等;要求严格切断的工况。

·三片式球阀质保体系:
有了您的信任与支持,我们提供值得信赖的Ruihao品牌产品,我们支持一系列的系统技术参数、技术指导、文件支持,实行质量跟踪、客户档案、售后保障。
·三片式球阀产品标准:
我们的产品按国际及国内相关标准验收,产品实行"全程跟踪"服务;随货提供"铭牌""质量证明""质保卡",产品带有"说明书""检验报告"等相关说明。
·三片式球阀解决方案:
瑞濠公司为工业系统和水力提供的整体方案,我们专注产品质量,把握每一个生产细节全程控制; 不仅为用户解决需求,还保障了控制系统运行可靠性,减少系统的故障及维护,不懈努力的为用户提供高品质、高性能的产品。
·三片式球阀售后保障:
瑞濠公司实行完善的用户档案和全程服务制度,每个用户都进行全程免费技术咨询、安装指导、跟踪服务以及相关咨询服务。
瑞濠公司的阀门产品实行"三包"服务,货物到现场提供相应技术指导支持; 质保期实行12个月到24个月不等。
·三片式球阀订购说明:
1.阀门产品:如有指定型号标准,请直播销售热线咨询价格,了解详情!
2.技术支持:如没有指定产品型号规格,请把工况要求、设计图纸、技术规范,发送传真或邮件至本公司。
3.产品订货参数:通径(DN),公称压力(Mpa),温度(℃),连接方式(螺纹、法兰、对夹等)。
4.产品驱动方式:手动、蜗轮、气动、电动等。
5.产品标准:国标GB、日标JIS、美标ANSI、德标DIN、英标BS、欧标EN等。
6.阀门报价确认:本公司提供报价清单及技术标准说明至客户确认,在双方技术各方面确认后再拟定合同。
7.阀门质量要求、质量标准、供方对质量负责的条件:按有关质量标准。