

| 球阀 |
| 闸阀 |
| 蝶阀 |
| 截止阀 |
| 止回阀 |
| 排气阀 |
| 过滤器 |
| 电磁阀 |
| 旋塞阀 |
| 平衡阀 |
| 减压阀 |
| 调节阀 |
| 角座阀 |
| 针型阀 |
| 疏水阀 |
| 管夹阀 |
| 隔膜阀 |
| 阻火器 |
| 呼吸阀 |
| 排泥阀 |
| 液压阀 |
| 放料阀 |
| 柱塞阀 |
| 低温阀门 |
| 衬氟阀门 |
| 塑料阀门 |
| 刀型闸阀 |
| 陶瓷阀门 |
| 黄铜阀门 |
| 水力控制阀 |
| 电动气动阀门 |
| 特材阀门 |
| 进入更多阀门系列 |

| 产品品牌 | Ruihao |
| 产品型号 | Q11F-1PC |
| 产品口径 | 1/4-3寸 |
| 产品压力 | 1.0-4.0Mpa |
| 产品材质 | SS304,SS316 |
| 产品应用 | 水、气、油品 |
| 产品特点 | ●瑞濠阀门,Ruihao工业品质。 ●质量保证,交货快捷,售后完善。 ●产品三包:包修、包换、包退。 ●(Ruihao)Pipeline Safety Keeper。 ●Ruihao工业品牌阀门,管道的安全管理员。 ●销售热线:+8613676550726、31007662。 |
不锈钢一片式球阀应用范围:
不锈钢一片式球阀又称快开球阀、内螺纹球阀、小球阀。适用于空气、蒸汽、水、气体、石油和石化产品、腐蚀性介质等,不锈钢一片式球阀适用于 PN1.0~4.0MPa,工作温度 -29~180℃(密封圈为增强聚四氟乙烯)或 -29~300℃(密封圈为对位聚苯)的各种管路上,用于截断或接通管路中的介质,选用不同的材质,可分别适用于水、蒸汽、油品、硝酸、醋酸等多种介质。
| 不锈钢一片式球阀产品标准: | ||||||||||||||||||||||||||||||||||||||||||||
|
设计标准:ASME B16.34 壁厚标准:ASME B16.34 螺纹标准:ASME B1.20.1,BS21,DIN 2999/259,ISO 228/1,JIS B 0203,ISO 7/1 检测标准:MSS SP-110,EN 1226 |
||||||||||||||||||||||||||||||||||||||||||||
| 一片式球阀二片式球阀三片式球阀区别: | ||||||||||||||||||||||||||||||||||||||||||||
|
一片式球阀,二片式球阀,三片式球阀根本的区别在阀体结构上。 一片式球阀是缩径的,由一个塞头将球体固定,流量比较小; 二片式球阀是全通径的,由两片阀体夹住球体固定的,维修相对复杂,中间的螺丝松紧度很关键,关系到是否漏气。密封性比较好; 三片式球阀跟二片式球阀类似,也是全通径的,但球体中间多了一个阀体,再由两边带颈法兰夹住,承受压力较好,安装方便,易拆卸维修和清洗. |
||||||||||||||||||||||||||||||||||||||||||||
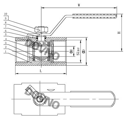
| 不锈钢一片式球阀结构图: | ||||||||||||||||||||||||||||||||||||||||||||
![]() |
||||||||||||||||||||||||||||||||||||||||||||
| 不锈钢一片式球阀材料表: | ||||||||||||||||||||||||||||||||||||||||||||
|
||||||||||||||||||||||||||||||||||||||||||||
| 不锈钢一片式球阀外表尺寸表: | ||||||||||||||||||||||||||||||||||||||||||||
|
||||||||||||||||||||||||||||||||||||||||||||