【气动陶瓷球阀】瑞濠品牌.质量保证,瑞濠阀业全方面介绍【
Q641TC气动陶瓷球阀】相关标准、选型、作用、结构图、规格型号;为您
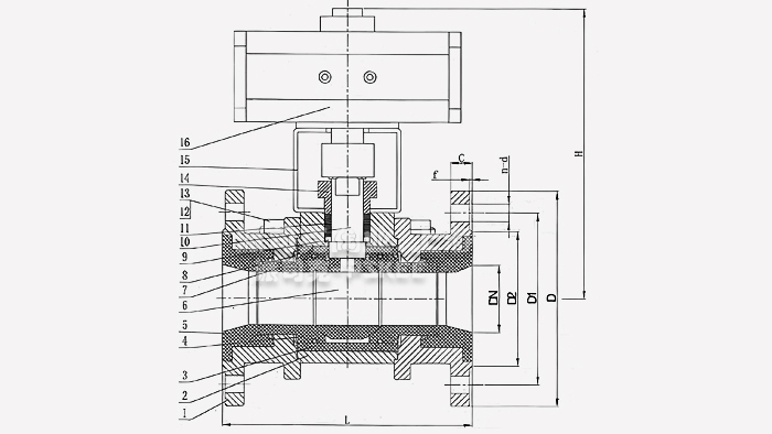
陶瓷阀门外形尺寸、工作原理、产品说明书、安装维护及产品示意图;为广大用户打造高品质、高性能、高标准、高寿命、价格优惠及一整套解决方案的系列气动陶瓷球阀。
气动陶瓷球阀产品简述:
气动陶瓷球阀的球体、阀座及介质流过表面均采用陶瓷制造,适用在磨损的场合。陶瓷材料的化学稳定性和硬度高。气动陶瓷球阀具有耐磨损、耐腐蚀性能,且隔热性好、热膨胀小。球体采用研磨设备及工艺制造,球圆度精度,表面质量好,与阀座对研后,利用Zr02陶瓷的自滑润性,可取得很好的密封性能。陶瓷良好的耐磨性,让气动陶瓷球阀经久耐用,可靠性高,使用寿命长,用于高硬度的颗粒介质,或有软颗粒但又有腐蚀的介质中。
气动陶瓷球阀产品结构:
1、陶瓷球阀主体材质化学元素和力学性能达到规定标准要求。壳体三段结构设计,体型坚固,外型美观。
2、阀杆材质化学元素达到规定标准要求,精工细磨,表面经抗蚀氮化或调质处理,保证阀杆具有良好的力学性能及抗腐蚀能力。
3、内置缓冲补偿弹性垫圈,确保稳定良好的密封性。并且在含有杂质介中,不容易卡死造成球的破裂。
4、全衬硬密封面接触陶瓷球阀所有与介质接触均为结构陶瓷材料, 其化学稳定性加上高的的硬度的特性。因此,陶瓷具有抗压强度,耐磨损性,耐高温,隔热性能良好。
5、 陶瓷球阀结构简洁,流道顺畅,介质流动阻力小。硬密封陶瓷内件,科学合理的设计组成,阀球、阀座面接触加工,使得球与座内R与外R紧密结合,球圆精度、表面质量好、使整阀扭矩轻、阻力小、密封性达到零泄漏。
气动陶瓷球阀性能特点:
·气动陶瓷球阀锻钢壳体(视具体工况可选A105N, SS304, S316, SS316L等),三段式结构设计,阀体强度高,结构简单可靠。
·耐腐蚀
阀门内部与介质直接接触的是阀球,阀座以及阀体内衬均采用氧化铝结构陶瓷材料。结构陶瓷具好的化学惰性,不与大部分化学介质反应,从而使全衬陶瓷硬密封球阀可适用于大多数高腐蚀性介质中。
·耐磨损
结构陶瓷同样具有高的硬度密封球阀。
·零泄露
全内衬陶瓷球阀与阀座之间为面接触硬密封结构,密封面经研磨加工和严格测试,保证零泄露。
·低扭矩值
阀球与阀座材质均为结构陶瓷,自润滑性好,阀门开启阻力小,开关顺畅。结构陶瓷的耐磨损性能保证阀门在长期使用后扭矩也不会有明显变化。
·气动陶瓷球阀规格型号全
采用法兰连接方式,公称压力等级:PN10-PN40ASME,公称通径:DN15-DN300。可接受客户定制非标产品。
气动陶瓷球阀产品标准:
设计与制造:GB/T12224
结构长度:GB/T 12221
法兰尺寸:GB/T9113
检验与试验:GB/T9092
材质:碳钢:GB/T12229
不锈钢GB/T 12230
标志:GB/T 12220
供货:GB/T12252
气动陶瓷球阀外形尺寸表:
|
通径DN
|
L
|
D
|
D1
|
D2
|
C
|
f
|
H
|
n-Φd
|
|
15
|
130
|
95
|
65
|
46
|
14
|
2
|
170
|
4-14
|
|
20
|
130
|
105
|
75
|
56
|
16
|
2
|
175
|
4-14
|
|
25
|
140
|
115
|
85
|
65
|
16
|
2
|
185
|
4-14
|
|
32
|
165
|
140
|
100
|
76
|
18
|
2
|
215
|
4-18
|
|
40
|
165
|
150
|
110
|
84
|
18
|
2
|
230
|
4-18
|
|
50
|
203
|
165
|
125
|
99
|
20
|
2
|
240
|
4-18
|
|
65
|
222
|
185
|
145
|
118
|
20
|
2
|
265
|
4-18
|
|
80
|
241
|
200
|
160
|
132
|
20
|
2
|
300
|
8-18
|
|
100
|
305
|
220
|
180
|
156
|
22
|
2
|
355
|
8-18
|
|
125
|
356
|
250
|
210
|
184
|
22
|
2
|
420
|
8-18
|
|
150
|
394
|
285
|
240
|
211
|
24
|
2
|
495
|
8-22
|
|
200
|
457
|
340
|
295
|
266
|
24
|
2
|
570
|
8-22
|
|
250
|
533
|
395
|
350
|
319
|
26
|
2
|
650
|
12-22
|
气动陶瓷球阀应用领域:
气动陶瓷球阀应用于火力发电厂、钢铁、石油、化工、造纸、生物工程、等行业。气动陶瓷球阀适用于锅炉蒸气、石灰浆液、含颗粒海水输送、高硬度颗粒、含软颗粒又带腐蚀性介质、粉末、烟气脱硫、排灰、排渣、给水处理。依用途更换材料,可用于不同温度和介质中。

·气动陶瓷球阀质保体系:
有了您的信任与支持,我们提供值得信赖的Ruihao品牌产品,我们支持一系列的系统技术参数、技术指导、文件支持,实行质量跟踪、客户档案、售后保障。
·气动陶瓷球阀产品标准:
我们的产品按相关标准验收,产品质量实行"售后跟踪"服务;随货提供"铭牌""质量证明""质保卡",产品并带有"说明书""检验报告"等相关说明。
·气动陶瓷球阀解决方案:
瑞濠公司为工业系统和水力提供的整体方案,我们专注产品质量,把握每一个产品细节全程控制; 不仅为用户解决需求,还保障了控制系统运行可靠性,减少系统的故障及维护,不懈努力的为用户提供高品质、高性能的产品。
·气动陶瓷球阀售后保障:
瑞濠公司实行完善的用户档案和全程服务制度,每个用户都进行全程免费技术咨询、安装指导、跟踪服务以及相关咨询服务。
瑞濠公司的阀门产品实行"三包"服务,货物到现场提供相应技术指导支持; 质保期实行12个月到24个月不等。
·气动陶瓷球阀订购说明:
1.阀门产品:如有指定型号标准,请直播销售热线咨询价格,了解详情!
2.技术支持:如没有指定产品型号规格,请把工况要求、设计图纸、技术规范,发送传真或邮件至本公司。
3.产品订货参数:通径(DN),公称压力(Mpa),温度(℃),连接方式(螺纹、法兰、对夹等)。
4.产品驱动方式:手动、蜗轮、气动、电动等。
5.产品标准:国标GB、日标JIS、美标ANSI、德标DIN、英标BS、欧标EN等。
6.报价确认:本公司提供报价清单及技术标准说明至客户确认,在双方技术各方面确认后再拟定合同。
7.阀门质量要求、质量标准、供方对质量负责的条件:按有关质量标准。