【300X缓闭止回阀】瑞濠品牌一体化解决方案,瑞濠阀业全方面介绍
300X缓闭止回阀图例、相关标准、选型、作用、结构图、规格型号;为您提供
水力控制阀外形尺寸、工作原理、安装维护及产品说明书;为广大用户打造高品质、高性能、高标准、高寿命、价格优惠的系列缓闭止回阀。
300X缓闭止回阀产品概述:
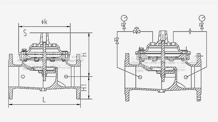
300X缓闭止回阀由主阀、单向阀、针阀、球阀、压力表组成水力控制接管系统。缓闭止回阀是安装在高层建筑给水系统以及其他给水系统的水泵出口处、防止介质倒流、水锤及水击现象的智能型阀门。该300x阀兼具电动阀、逆止阀和水锤消除器三种功能,可有效地提高供水系统的可靠性、并将缓开、速闭、缓闭消除水锤的技术原理一体化,防止开泵水锤和停泵水锤的产生。只需操作水泵电机启闭按钮,阀门即可按照水泵操作规程自动实现启闭,不需要其它装置和能源,保养简便,具流量大,压力损失小,开启及缓闭平稳。
300X缓闭止回阀工作原理:
当缓闭止回阀从进口端给水时,水通过单向阀、针阀进入主阀控制室,再经过球阀排水至下游。因为针阀开度小于球阀开度,即300X主阀控制室的排水速度大于进水速度,因此控制压力降低,作用于主阀盘下端的进口压力打开主阀向下游供水。当管道停止供水时,若下游水开始回流,一部份流水经球阀进入主控制室,由于单向阀作用,回流水不能从主控制室流出,引起主控制室逐渐升压,缓缓关闭主阀。
300X缓闭止回阀产品特点:
1、开启或关闭速度可调
2、防止水锺水击的产生
3、缓闭消声功能
300X缓闭止回阀产品应用:
300X型缓闭止回阀由主阀、单向阀、针阀、球阀、微形过滤器和压力表组成水力控制阀接管系统。利用水力自动操作,可使主阀得到理想的开启和关闭速度。防止水锺水击的产生,以达到缓闭消声的效果。广泛用于高层建筑、生活区等供水管网系统及城市供水工程。
300X缓闭止回阀主要材料表:
|
零件名称
|
零件材料
|
|
阀体 阀盖
|
HT450、WCB、304
|
|
阀座 阀盘
|
不锈钢
/2Cr13
|
|
密封圈 O型圈
|
丁腈橡胶
|
|
阀杆
|
2Cr13
|
|
弹簧
|
50CrVA
|
|
缸套 活塞(活塞型)
|
2Cr13
|
|
膜片(膜片型)
|
夹织物丁腈橡胶
|
|
泄压/持压导阀
|
不锈钢
|
|
针型阀 球阀
|
不锈钢
|
|
过滤器
|
不锈钢
|
300X缓闭止回阀外形尺寸表:
|
DN
|
50
|
65
|
80
|
100
|
125
|
150
|
200
|
250
|
300
|
350
|
400
|
450
|
500
|
600
|
|
L
|
230
|
290
|
310
|
350
|
350
|
480
|
600
|
730
|
850
|
850
|
1100
|
1100
|
1250
|
1450
|
|
H
|
139
|
159
|
179
|
214
|
214
|
333
|
407
|
476
|
526
|
526
|
624
|
624
|
720
|
835
|
|
H1
|
85
|
95
|
102
|
112
|
127
|
145
|
172
|
205
|
232
|
262
|
292
|
325
|
360
|
425
|
|
K
|
173
|
198
|
226
|
265
|
265
|
351
|
436
|
524
|
606
|
606
|
741
|
741
|
1002
|
1308
|
|
S
|
3/8
|
3/8
|
3/8
|
1/2
|
1/2
|
1/2
|
3/4
|
1
|
1
|
1
|
1-1/2
|
1-1/2
|
2
|
2
|
|
Kg
|
14
|
19
|
23
|
32
|
45
|
68
|
125
|
200
|
260
|
310
|
560
|
620
|
880
|
1300
|
300X缓闭止回阀安装和调节:
1. 300X型缓闭止回阀主阀的安装方式是水平安装在管线上,阀盖朝上,其它安装方式也可以达到使用功能。
2. 安装前要清除管道内的杂物,安装是要注意主阀体外水流标示箭头,遵循方向安装。
3. 300X型缓闭止回阀主阀前要装一只闸阀和一只过滤器,主阀后也要装一只闸阀,以便于维修。
4. 通水前须冲洗管道。
5. 试水时,要慢慢开启主阀前的闸阀,慢慢增加压力,同时注意主阀体外的控制管路是否漏水。
6. 300X型缓闭止回阀主阀上的微型过滤器要主期清洗针型阀和球阀配合调节,可得到理想的开启和关闭速度。

·300X缓闭止回阀质保体系:
有了您的信任与支持,我们提供值得信赖的Ruihao品牌产品,我们支持一系列的系统技术参数、技术指导、文件支持,实行质量跟踪、客户档案、售后保障。
·300X缓闭止回阀产品标准:
我们的产品按相关标准验收,产品质量实行"售后跟踪"服务;随货提供"铭牌""质量证明""质保卡",产品并带有"说明书""检验报告"等相关说明。
·300X缓闭止回阀解决方案:
瑞濠公司为工业系统和水力提供的整体方案,我们专注产品质量,把握每一个产品细节全程控制; 不仅为用户解决需求,还保障了控制系统运行可靠性,减少系统的故障及维护,不懈努力的为用户提供高品质、高性能的产品。
·300X缓闭止回阀售后保障:
瑞濠公司实行完善的用户档案和全程服务制度,每个用户都进行全程免费技术咨询、安装指导、跟踪服务以及相关咨询服务。
瑞濠公司的阀门产品实行"三包"服务,货物到现场提供相应技术指导支持; 质保期实行12个月到24个月不等。
·300X缓闭止回阀订购说明:
1.阀门产品:如有指定型号标准,请直播销售热线咨询价格,了解详情!
2.技术支持:如没有指定产品型号规格,请把工况要求、设计图纸、技术规范,发送传真或邮件至本公司。
3.产品订货参数:通径(DN),公称压力(Mpa),温度(℃),连接方式(螺纹、法兰、对夹等)。
4.产品驱动方式:手动、蜗轮、气动、电动等。
5.产品标准:国标GB、日标JIS、美标ANSI、德标DIN、英标BS、欧标EN等。
6.报价确认:本公司提供报价清单及技术标准说明至客户确认,在双方技术各方面确认后再拟定合同。
7.阀门质量要求、质量标准、供方对质量负责的条件:按有关质量标准。