【单向节流阀】瑞濠品牌一体化解决方案,立洛阀业全方面介绍【单向节流阀】相关标准、选型、作用、结构图、规格型号;外形尺寸、工作原理、安装维护及节流阀组产品说明书;为广大用户提供高品质、高性能、高标准、高寿命、价格优惠的系列液压阀。
分流集流阀图形符号:
分流集流阀技术参数:
额定压力/Rated Pressure : 19.6MPa
公称通径/Nominal Diameter : 15mm
额定流量/Rated Flow : 60L/m【STU型单向节流阀】上海Ruihao品牌阀门,立洛阀业全方面介绍【STU型单向节流阀】相关标准、选型、作用、结构图、规格型号;外形尺寸、工作原理、安装维护及卸荷阀组产品说明书;为广大用户提供高品质、高性能、高标准、高寿命、价格优惠的系列液压阀。
STU型单向节流阀图形符号:

节流阀在进油口和出油口之间可产生压降。该阀没有压力补偿,因而调节流量可以改
变压力和液压油粘度的关系。
STU型单向节流阀应用材料:
阀体:钢
阀芯:强化硬质钢
密封:丁腈胶
适用工作环境
安装阀芯/VALVES:强化硬质钢
按需密封:丁腈胶
温度
理想工作温度:+40℃~+70℃
工作温度不可超过:+90℃
环境温度:-20℃~+60℃
STU型单向节流阀型号说明:
①材料/Material:SS:不锈钢:碳钢
②节流阀系列代号:STU型/STU
③连接螺纹尺寸:G,NPT
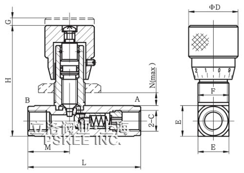
STU型单向节流阀外形尺寸表:
|
型号Model
|
C
|
L
|
H
|
D
|
E
|
F*
|
G
|
M
|
N
|
|
STU0400
|
G1/4 NPT1/4
|
73
|
72
|
32
|
20
|
M20*1
|
5
|
27
|
7
|
|
STU0600
|
G3/8 NPT3/8
|
82
|
80
|
32
|
25
|
M25*1.5
|
9
|
31
|
7
|
|
STU0800
|
G1/2 NPT1/2
|
98
|
92
|
45
|
30
|
M30*1.5
|
9
|
36.5
|
9
|
|
STU1200
|
G3/4 NPT3/4
|
112
|
100
|
45
|
40
|
M35*1.5
|
10
|
42
|
11
|
|
STU1600
|
G1 NPT1
|
142
|
122
|
45
|
45
|
M40*1.5
|
12
|
51
|
15
|
STU型单向节流阀流量:
型号
Model
|
STU0400
|
STU0600
|
STU0800
|
STU1200
|
STU1600
|
|
压力
|
40
|
40
|
40
|
40
|
32
|
|
流量
|
12
|
30
|
50
|
85
|
150
|
in
导控压力/Max.Control Pressure : 9.8MPa
开启压力范围/Start Pressure Range : 6.86~9.8MPa
闭合压力范围/Close Pressure Range :
开启压力的 53~56% / Start Pressure 53~56%
分流集流阀外形尺寸表:

·STU型单向节流阀质保体系:
有了您的信任与支持,我们提供值得信赖的Ruihao品牌产品,我们支持一系列的系统技术参数、技术指导、文件支持,实行质量跟踪、客户档案、售后保障。
·STU型单向节流阀产品标准:
我们的产品按国家相关标准验收,产品质量实行"售后跟踪"服务;随货提供"铭牌""质量证明""质保卡",产品并带有"说明书""检验报告"等相关说明。
·STU型单向节流阀解决方案:
立洛公司为工业系统和水力提供的整体方案,我们专注产品质量,把握每一个产品细节全程控制; 不仅为用户解决需求,还保障了控制系统运行可靠性,减少系统的故障及维护,不懈努力的为用户提供高品质、高性能的产品。
·STU型单向节流阀售后保障:
立洛公司实行完善的用户档案和全程服务制度,每个用户都进行全程免费技术咨询、安装指导、跟踪服务以及相关咨询服务。
立洛公司的阀门产品实行"三包"服务,货物到现场提供相应技术指导支持; 质保期实行12个月到24个月不等。
·STU型单向节流阀订购说明:
1.阀门产品:如有指定型号标准,请直播销售热线咨询价格,了解详情!
2.技术支持:如没有指定产品型号规格,请把工况要求、设计图纸、技术规范,发送传真或邮件至本公司。
3.产品订货参数:通径(DN),公称压力(Mpa),温度(℃),连接方式(螺纹、法兰、对夹等)。
4.产品驱动方式:手动、蜗轮、气动、电动等。
5.产品标准:国标GB、日标JIS、美标ANSI、德标DIN、英标BS、欧标EN等。
6.报价确认:本公司提供报价清单及技术标准说明至客户确认,在双方技术各方面确认后再拟定合同。
7.阀门质量要求、质量标准、供方对质量负责的条件:按国家有关质量标准。