【带指挥操作自力式压力调节阀】瑞濠品牌.质量保证,瑞濠阀业全方面介绍ZZYVP带指挥操作自力式压力调节阀相关标准、选型、作用、结构图、规格型号;外形尺寸、工作原理、安装维护及产品说明书;为广大用户提供高品质、高性能、高标准、高寿命、价格优惠的系列自力式调节阀。
带指挥操作自力式压力调节阀产品简述:
ZZYVP型带指挥器操作
自力式压力调节阀(氮封阀),是一种无须外来能源,利用被调介质自身的压力变化达到自动调节和稳定阀后压力为设定值的节能型压力
调节阀。 该自力式调节阀压力设定在指挥器上实现,方便、快捷,压力设定值在运行中也可随意调整;控制精度高,适合阀前P≤1MPa,阀后<10kPa, 用于开关控制,不能连续控制,但精度要求高的场合。
该带指挥操作自力式压力调节阀系列只有阀后式 ZZYVP-16B一种。
带指挥操作自力式压力调节阀产品特点:
1、自力式压力调节阀无需外加能源,能在无电、无气的场合工作,既方便又节约能源,降低成本。
2、用于氮封装置供氮,泄氮压力设定方便,可在连续经营的条件下进行。
3、调节阀压力检测膜片有效面积大,设定弹簧刚度小、动作灵敏、装置工作平衡。
4、采用无填料设计,阀杆所受磨擦力小、反应迅速、控制精度高。
5、供氮装置采用指挥器操作,减压比高,减压效果好、控制精度高。
6、为确保储罐的安全,需在罐顶设置呼吸阀。
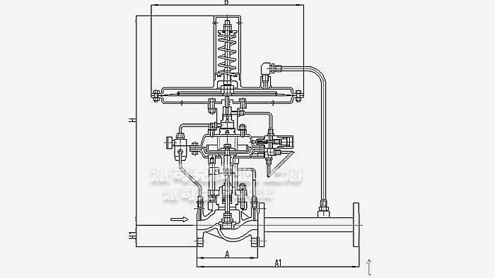
阀后式(薄膜式执行机构)
带指挥操作自力式压力调节阀工作原理:
ZZYVP型带指挥器操作自力式压力调节阀是由指挥器、调节阀、执行机构和阀后接管四部分组成。
介质以所示箭头方向进入阀体,一路经过滤减压器减压后的压力被引入指挥器;另一路通过阀芯、阀座,节流后的压力流向阀后,并通过导压管引入指挥器执行机构。当自力式压力调节阀后压力高于设定压力时,其压力作用在指挥器薄膜有效面上产生一个推力带动指挥器阀芯关闭,切断引入主阀执行机构膜室中的压力,使主阀阀芯关闭,阀后压力随之降低。当自力式压力调节阀后压力低于设定值时,由于指挥器主弹簧的反作用力打开指挥器阀芯,阀前压力又被引入主阀执行机构膜室产生推力,使主阀阀芯打开,阀后压力随之升高。如此往复,保持阀后压力为设定值。
带指挥操作自力式压力调节阀主要技术参数:
|
公称通径(mm)
|
20
|
25
|
40
|
50
|
80
|
100
|
150
|
|
阀座直径(mm)
|
6
|
15
|
20
|
25
|
32
|
40
|
50
|
65
|
80
|
100
|
125
|
150
|
|
额定流量系数Kv
|
3.2
|
5
|
8
|
10
|
20
|
32
|
50
|
80
|
100
|
160
|
250
|
400
|
|
压力调节范围
|
0.5~70 20~120 60~400 300~700 500~1000 KPa
|
|
公称压力PN
|
1.0、1.6 MPa
|
|
被调介质温度
|
80、200 ℃
|
|
流量特性
|
快开型
|
|
调节精度
|
≤5%
|
|
允许压降(MPa)
|
1.6
|
1.6
|
1.1
|
0.6
|
0.4
|
|
薄膜有效面积(C㎡)
|
200
|
280
|
400
|
|
允许泄漏量
|
符合ANSIB16.104—1976 IV级
|
带指挥操作自力式压力调节阀外形尺寸图:
带指挥操作自力式压力调节阀外形尺寸表:
|
公称通径(DN)
|
20
|
25
|
32
|
40
|
50
|
65
|
80
|
100
|
125
|
150
|
|
A
|
150
|
160
|
180
|
200
|
230
|
290
|
310
|
350
|
400
|
480
|
|
H1
|
老型
|
105
|
117
|
120
|
139
|
144
|
188
|
208
|
220
|
268
|
278
|
|
精小型
|
52.5
|
57.5
|
75
|
75
|
85.5
|
92.5
|
100
|
110
|
142.5
|
158
|
|
H
|
330
|
330
|
350
|
350
|
360
|
430
|
440
|
450
|
520
|
650
|
|
B
|
310
|
400
|
带指挥操作自力式压力调节阀产品应用:
带指挥器自力式压力调节阀属于自力式阀门系列,其本身是一个无须外加能源的完整调节系统。该自力式调节阀(氮封阀)它广泛应用于化工、石油、冶金、电力、轻纺等工业部门中用作生产过程的自动调节。适用于储罐氮封系统。

·带指挥操作自力式压力调节阀质保体系:
有了您的信任与支持,我们提供值得信赖的Ruihao品牌产品,我们支持一系列的系统技术参数、技术指导、文件支持,实行质量跟踪、客户档案、售后保障。
·带指挥操作自力式压力调节阀产品标准:
我们的产品按相关标准验收,产品质量实行"售后跟踪"服务;随货提供"铭牌""质量证明""质保卡",产品并带有"说明书""检验报告"等相关说明。
·带指挥操作自力式压力调节阀解决方案:
瑞濠公司为工业系统和水力提供的整体方案,我们专注产品质量,把握每一个产品细节全程控制; 不仅为用户解决需求,还保障了控制系统运行可靠性,减少系统的故障及维护,不懈努力的为用户提供高品质、高性能的产品。
·带指挥操作自力式压力调节阀售后保障:
瑞濠公司实行完善的用户档案和全程服务制度,每个用户都进行全程免费技术咨询、安装指导、跟踪服务以及相关咨询服务。
瑞濠公司的阀门产品实行"三包"服务,货物到现场提供相应技术指导支持; 质保期实行12个月到24个月不等。
·带指挥操作自力式压力调节阀订购说明:
1.阀门产品:如有指定型号标准,请直播销售热线咨询价格,了解详情!
2.技术支持:如没有指定产品型号规格,请把工况要求、设计图纸、技术规范,发送传真或邮件至本公司。
3.产品订货参数:通径(DN),公称压力(Mpa),温度(℃),连接方式(螺纹、法兰、对夹等)。
4.产品驱动方式:手动、蜗轮、气动、电动等。
5.产品标准:国标GB、日标JIS、美标ANSI、德标DIN、英标BS、欧标EN等。
6.报价确认:本公司提供报价清单及技术标准说明至客户确认,在双方技术各方面确认后再拟定合同。
7.阀门质量要求、质量标准、供方对质量负责的条件:按有关质量标准。