【气动V型调节球阀】瑞濠品牌.质量保证,瑞濠阀业全方面介绍气动V型调节球阀相关标准、选型、作用、结构图、规格型号;外形尺寸、工作原理、安装维护及产品说明书;为广大用户提供高品质、高性能、高标准、高寿命、价格优惠的系列气动V型调节球阀。
气动比例调节球阀产品简述:
气动比例调节阀是一种通过气动执行机构驱动的流量控制阀门,核心部件为具有V型开口的阀芯(通常为球体或阀板)。其设计结合了调节阀的高精度控制与切断阀的密封性能,广泛应用于工业自动化系统中,适用于液体、气体、蒸汽及含颗粒、纤维等复杂介质的流量、压力、温度等参数调节。阀门材质常为不锈钢、碳钢或**合金,可适配高温、高压、腐蚀性工况。
气动比例调节阀设计标准:
1、V型球阀法兰标准:GB/T 9113.1-2010、JB/T?79.1-1994、HG/20592-2009 ASME?B?16.5?EN?1092-1:?2001
2、压力一温度额定值:GB/T?12224-2007/ASME/B16.34-2003/IS0/7005-1
3、结构长度标准: 对夹式:企业标准 法兰式:ISA/S75.04-1995,IEC/DIN/534-3-2
4、适应温度范围: -29℃-150℃常温型 一 -29℃-250℃中温型 一 -29℃_350℃高温型
5、密封与强度试验标准
强度及密封试验标准:GB/T?4213-2007
6、硬密封等级:用户无要求时按下表标准,用户要求时可以按GB/T 4213-2007 V级标准执行。 V型调节球阀强度试验压力是按公称压力的1.5倍,填料及法兰处密封试验是按公称压力的1.1倍压力进行,阀座密封是按大使用压差 来进行试验,当大使用压差不明确时按1.0MPa(水压)试验,当大压差小于0.6MPa时按0.6MPa压力进行试验,介质是带有缓蚀阻垢剂的水进行试验。
气动比例调节球阀作用原理:
1. 信号输入:控制系统(如PLC/DCS)输出4-20mA电信号至定位器,转换为气压信号(通常0.02-0.1MPa)。
2. 气动驱动:气压推动执行器内活塞或薄膜,转化为阀杆的直线或角行程运动,带动V型阀芯旋转或升降。
3. 流量调节:V型阀芯与阀座间的开度随阀芯动作变化,形成近似等百分比流量特性,实现线性精准调节。介质通过V型切口时,尖锐边缘可剪切颗粒或纤维,防止堵塞。
气动比例调节球阀性能特点:
1. 高精度控制:V型结构提供渐进式流量曲线,调节灵敏度高,适用于小开度**控制(如≤5%开度仍稳定)。
2. 强抗堵耐磨:V型刃口设计可切断介质中的固体颗粒,阀芯表面硬化处理(如碳化钨涂层)延长使用寿命。
3. 高密封等级:金属硬密封或软密封(PTFE)可选,泄漏等级达ANSI Class VI,切断性能优异。
4. 大可调比:通常可达百分比,适应流量大幅波动的工况。
5. 模块化设计:执行器与阀体可快速分离,支持在线更换阀座、填料,维护成本低。
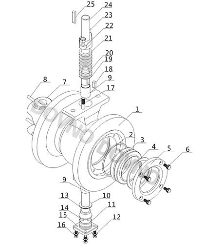
气动比例调节球阀主要材料表:
|
序号
|
名称
|
数量(件)
|
材料
|
|
1
|
阀体
|
1
|
CF8
|
|
2
|
O型圈
|
1
|
氟橡胶
|
|
3
|
阀座
|
1
|
304堆焊硬质合金
|
|
4
|
弹簧
|
1
|
17-7PH
|
|
5
|
密封座盖
|
1
|
304
|
|
6
|
内六角螺钉
|
4
|
304
|
|
7
|
阀芯
|
1
|
CF8表面镀硬铬
|
|
8
|
圆柱销
|
2
|
304
|
|
9
|
自润滑轴承
|
2
|
304+PTFE
|
|
10
|
下阀杆
|
1
|
17-4PH
|
|
11
|
O型圈
|
1
|
氟橡胶
|
|
12
|
平垫片
|
4
|
304
|
|
13
|
环垫
|
1
|
PTFE
|
|
14
|
调节垫片
|
1
|
PTFE
|
|
15
|
后压盖
|
1
|
CF8
|
|
16
|
螺栓
|
4
|
304
|
|
17
|
双头螺栓
|
2
|
304
|
|
18
|
平键
|
1
|
304
|
|
19
|
下填料
|
1
|
PTFE
|
|
20
|
中填料
|
1组
|
PTFE
|
|
21
|
上填料
|
1
|
PTFE
|
|
22
|
填料压盖
|
1
|
CF8
|
|
23
|
螺母
|
2
|
304
|
|
24
|
上阀杆
|
1
|
17-4PH
|
|
25
|
平键
|
1
|
45
|
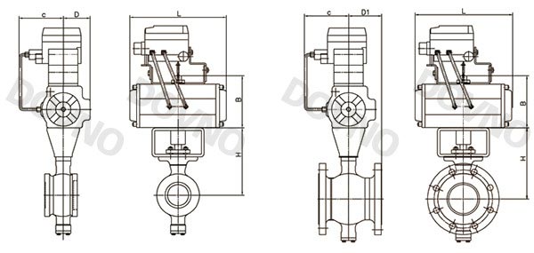
气动比例调节球阀外形尺寸表:
|
DN
|
L
|
B
|
H
|
C
|
D
|
D1
|
|
25
|
168
|
108
|
163
|
120
|
36
|
85
|
|
32
|
168
|
108
|
168
|
120
|
36
|
85
|
|
40
|
204
|
129
|
170
|
130
|
46
|
85
|
|
50
|
262
|
137
|
180
|
130
|
50
|
85
|
|
65
|
262
|
137
|
195
|
130
|
50
|
85
|
|
80
|
268
|
153
|
210
|
145
|
56
|
90
|
|
100
|
268
|
153
|
220
|
145
|
56
|
102
|
|
125
|
300
|
175
|
235
|
160
|
68
|
97
|
|
150
|
390
|
192
|
270
|
160
|
75
|
129
|
|
200
|
460
|
217
|
300
|
175
|
87
|
123
|
|
250
|
525
|
260
|
375
|
195
|
103
|
149
|
|
300
|
600
|
319
|
420
|
220
|
|
148
|
|
350
|
720
|
356
|
500
|
250
|
|
179
|
|
400
|
740
|
378
|
550
|
260
|
|
180
|
|
450
|
740
|
378
|
650
|
260
|
|
230
|
|
500
|
860
|
432
|
720
|
260
|
|
280
|
气动比例调节球阀产品用途:
气动比例调节阀适用于适合含纤维、微小固体颗粒、料浆等介质,应用于造纸、化工、冶金等工业企业中含有纤维或微小固体颗粒的悬浊液介质中对有关工艺参数的控制,适用于制浆、造纸生产过程中的纸浆、白水、黑液、白液等悬浮颗粒的流体及浓、浊浆状流体介质的自动调节。

·气动比例调节球阀质保体系:
有了您的信任与支持,我们提供值得信赖的Ruihao品牌产品,我们支持一系列的系统技术参数、技术指导、文件支持,实行质量跟踪、客户档案、售后保障。
·气动比例调节球阀产品标准:
我们的产品按国际及国内相关标准验收,产品实行"全程跟踪"服务;随货提供"铭牌""质量证明""质保卡",产品带有"说明书""检验报告"等相关说明。
·气动比例调节球阀解决方案:
瑞濠公司为工业系统和水力提供的整体方案,我们专注产品质量,把握每一个产品细节全程控制; 不仅为用户解决需求,还保障了控制系统运行可靠性,减少系统的故障及维护,不懈努力的为用户提供高品质、高性能的产品。
·气动比例调节球阀售后保障:
瑞濠公司实行完善的用户档案和全程服务制度,每个用户都进行全程免费技术咨询、安装指导、跟踪服务以及相关咨询服务。
瑞濠公司的阀门产品实行"三包"服务,货物到现场提供相应技术指导支持; 质保期实行12个月到24个月不等。
·气动比例调节球阀订购说明:
1.阀门产品:如有指定型号标准,请直播销售热线咨询价格,了解详情!
2.技术支持:如没有指定产品型号规格,请把工况要求、设计图纸、技术规范,发送传真或邮件至本公司。
3.产品订货参数:通径(DN),公称压力(Mpa),温度(℃),连接方式(螺纹、法兰、对夹等)。
4.产品驱动方式:手动、蜗轮、气动、电动等。
5.产品标准:国标GB、日标JIS、美标ANSI、德标DIN、英标BS、欧标EN等。
6.报价确认:本公司提供报价清单及技术标准说明至客户确认,在双方技术各方面确认后再拟定合同。
7.阀门质量要求、质量标准、供方对质量负责的条件:按有关质量标准。