【216铜球阀】瑞濠品牌一体化解决方案,瑞濠阀业全方面介绍【216铜球阀】相关标准、选型、作用、结构图、规格型号、外形尺寸、工作原理、安装维护及产品说明书;为广大用户提供高品质、高性能、高标准、高寿命、价格优惠的216铜球阀。
铜球阀使用说明:
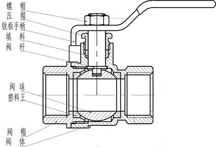
球阀在管道上主要用于切断、分配和改变介质流动方向。为延长球阀使用寿命,应作全开和全关使用。
铜球阀安装指南:
1、管螺纹连接的球阀,安装旋紧时,应使管子与阀体端面垂直,并板钳该螺纹同侧端的六角或八角部位,不应扳钳另一端的六角或八角或其他部位,以免造成阀体变形或影响开启。
2、内螺纹连接球阀,须控制管端的外螺纹长度,以免管端螺纹过长,旋入时顶压球阀内螺纹端面,造成阀体变形而影响密封性。
3、管螺纹连接的球阀与管端的螺纹相连接时,内螺纹可以是圆锥管螺纹,也可以是圆柱管螺纹,但外螺纹是圆锥管螺纹,否则会导致连接不紧而泄漏。
4、法兰球阀上分度圆应与管道法兰上分度圆尺寸一致方能相配,两端管道中心应垂直于法兰球阀法兰面,否则会造成阀体扭曲而变形。
5、管螺纹连接的球阀安装时,密封材料应清洁、干净。
6、安装时注意球阀手柄启闭范围内不能有障碍物,如墙、管子、连接螺母等。
7、球阀手柄与阀体方向平行时为开,垂直时为关。
8、介质应不含颗粒、腐蚀性气体或液体。
9、PP-R管球阀安装:
①、将阀体上连接螺母、PP-R管法兰和O型密封圈分别拆下。
②、将拆下连接螺母按原方向套入PP-R管上。
③、将PP-R管法兰和PP-R管用热熔器熔合后结合,冷却后将O型密封圈套入PP-R管法兰台阶上,将连接螺母与阀体拧紧即可。

·216铜球阀质保体系:
有了您的信任与支持,我们提供值得信赖的Ruihao品牌产品,我们支持一系列的系统技术参数、技术指导、文件支持,实行质量跟踪、客户档案、售后保障。
·216铜球阀产品标准:
我们的产品按相关标准验收,产品质量实行"售后跟踪"服务;随货提供"铭牌""质量证明""质保卡",产品并带有"说明书""检验报告"等相关说明。
·216铜球阀解决方案:
瑞濠公司为工业系统和水力提供的整体方案,我们专注产品质量,把握每一个产品细节全程控制; 不仅为用户解决需求,还保障了控制系统运行可靠性,减少系统的故障及维护,不懈努力的为用户提供高品质、高性能的产品。
·216铜球阀售后保障:
瑞濠公司实行完善的用户档案和全程服务制度,每个用户都进行全程免费技术咨询、安装指导、跟踪服务以及相关咨询服务。
瑞濠公司的阀门产品实行"三包"服务,货物到现场提供相应技术指导支持; 质保期实行12个月到24个月不等。
·216铜球阀订购说明:
1.阀门产品:如有指定型号标准,请直播销售热线咨询价格,了解详情!
2.技术支持:如没有指定产品型号规格,请把工况要求、设计图纸、技术规范,发送传真或邮件至本公司。
3.产品订货参数:通径(DN),公称压力(Mpa),温度(℃),连接方式(螺纹、法兰、对夹等)。
4.产品驱动方式:手动、蜗轮、气动、电动等。
5.产品标准:国标GB、日标JIS、美标ANSI、德标DIN、英标BS、欧标EN等。
6.报价确认:本公司提供报价清单及技术标准说明至客户确认,在双方技术各方面确认后再拟定合同。
7.阀门质量要求、质量标准、供方对质量负责的条件:按有关质量标准。