【水力减压阀】瑞濠品牌.质量保证,瑞濠阀业全方面介绍【水力减压阀】相关标准、选型、作用、结构图、规格型号、外形尺寸、工作原理、安装维护及产品说明书;为广大用户提供高品质、高性能、高标准、高寿命、价格优惠的水力减压阀。
水力减压阀产品简述:
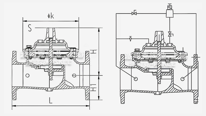
200X
水力减压阀是一种利用管道内自身压力来调控出口压力的智能型阀门。当
减压阀导阀设定出口压力时,不因进口压力、流量变化而改变出口压力,将出口压力固定在设定值上。调节导阀可达到用户所需的压力范围。该200X水力减压阀使用于消防、给排水、生活用水及其它工业给排系统管道上。减压准确,稳压性能稳定,安装调试方便。
水力减压阀产品特点:
水力减压阀阀体采用了全通道流线型设计,流本阻力小,流量大。减压阀在传动方式上采用了水力操作,即利用管路中的水压自动操作主阀盘的下下移动,控制阀门开度,调节下游压力,使下游压力维持在导阀 弹簧设定的压力值上。当下游压力过设定值时,减压阀将自动关闭,不管入口压力怎样波动,都可输出稳定的出口压力,不管下游流量怎样变化,水力减压阀都能维持出口压力稳定在导阀设定值上。同时通过导阀调节的出口压力,调节范围大,减压阀可达阀前压力10-80%,且工作平稳,无水锤冲击现象。
水力减压阀产品性能:
①减压阀阀体采用全通道、流线型设计,流体阻力小,流量大;
②体盖、活塞缸连接处由密封垫和密封环双重密封,无外漏;
③阀体、活塞缸、活塞双重导向,动作平稳、可靠;
④全不锈钢活塞缸、整体铸造活塞、NBR密封环,组合大延长使用;
⑤水力减压阀引进技术的可拆卸阀座,结构巧妙、构思新颖、方便维修更换;
⑥带导流孔的活塞缸,适当增加阻尼,使得活塞运动更趋于平稳。
水力减压阀安装调能:
1.水力减压阀主阀的安装方式是水平卧式安装,其他安装方式也可达到操作功能。减压阀安装前要清除管道内的杂物,要注意主阀体外水流标标箭头,遵循方向安装,安装后应确保没有管路应力作用在阀体 及阀内部件上。
2.主阀前要安装一只闸阀和一只过滤器,主阀后也要装一只闸阀,以便于维修。
3.水力减压阀导阀与导管控制系统已于出厂前装配和调整完毕,如导阀出厂设定压力值不适合现场要求,可通过拧紧或放松导阀上端螺钉来调节,顺时针拧动螺钉为增加压力,逆时针拧动螺钉为减少压力,调节完
后拧紧锁紧螺母。
4.主阀上的微型过滤器要定期清洗。
5.通水前的须冲洗管路系统。
6.对重要给水管路应安装旁通阀。
水力减压阀主要技术参数:
|
公称压力
|
1.0MPa
|
1.6 Mpa
|
2.5 Mpa
|
|
壳体试验压力
|
1.5 Mpa
|
2.4 Mpa
|
3.75 Mpa
|
|
密封试验压力
|
1.1 Mpa
|
1.76 Mpa
|
2.75 Mpa
|
|
入口压力
|
1.0 MPa
|
1.6 MPa
|
2.5 Mpa
|
|
出口压力可调节的范围
|
0.09-0.8 MPa
|
0.10-1.2 MPa
|
0.15-1.6 MPa
|
|
工作温度
|
≤80℃
|
|
适用介质
|
清水、原水
|
水力减压阀外形尺寸表:
|
DN
|
50
|
65
|
80
|
100
|
125
|
150
|
200
|
250
|
300
|
350
|
400
|
450
|
500
|
600
|
|
L
|
230
|
290
|
310
|
350
|
350
|
480
|
600
|
760
|
850
|
850
|
1100
|
1100
|
1250
|
1450
|
|
H
|
139
|
159
|
179
|
214
|
214
|
333
|
407
|
476
|
526
|
526
|
624
|
624
|
720
|
835
|
|
H1
|
85
|
95
|
102
|
112
|
127
|
145
|
172
|
205
|
232
|
262
|
292
|
325
|
360
|
425
|
|
K
|
173
|
198
|
226
|
265
|
265
|
351
|
436
|
524
|
606
|
606
|
741
|
741
|
1002
|
1308
|
|
S
|
3/8
|
3/8
|
3/8
|
1/2
|
1/2
|
1/2
|
3/4
|
1
|
1
|
1
|
1-1/2
|
1-1/2
|
2
|
2
|
|
重量Kg
|
14
|
19
|
23
|
32
|
45
|
68
|
125
|
200
|
260
|
310
|
560
|
620
|
880
|
130
|
水力减压阀产品用途:
水力减压阀利用导阀自力控制,不需要其它装置和能源,保养简便,压力控制准确度高,受进口压力和流量影响小,减压稳压可靠。本减压阀是我厂参照国外产品设计和制造的,水力减压阀适用于工矿企业、高层建筑、生活用水、消防用水系统中使用,需要减静压和动压的场合可以取代中间水箱,节约建筑中间水箱的费用;扩大建 筑物使用的空间。

·水力减压阀质保体系:
有了您的信任与支持,我们提供值得信赖的Ruihao品牌产品,我们支持一系列的系统技术参数、技术指导、文件支持,实行质量跟踪、客户档案、售后保障。
·水力减压阀产品标准:
我们的产品按相关标准验收,产品质量实行"售后跟踪"服务;随货提供"铭牌""质量证明""质保卡",产品并带有"说明书""检验报告"等相关说明。
·水力减压阀解决方案:
瑞濠公司为工业系统和水力提供的整体方案,我们专注产品质量,把握每一个产品细节全程控制; 不仅为用户解决需求,还保障了控制系统运行可靠性,减少系统的故障及维护,不懈努力的为用户提供高品质、高性能的产品。
·水力减压阀售后保障:
瑞濠公司实行完善的用户档案和全程服务制度,每个用户都进行全程免费技术咨询、安装指导、跟踪服务以及相关咨询服务。
瑞濠公司的阀门产品实行"三包"服务,货物到现场提供相应技术指导支持; 质保期实行12个月到24个月不等。
·水力减压阀订购说明:
1.阀门产品:如有指定型号标准,请直播销售热线咨询价格,了解详情!
2.技术支持:如没有指定产品型号规格,请把工况要求、设计图纸、技术规范,发送传真或邮件至本公司。
3.产品订货参数:通径(DN),公称压力(Mpa),温度(℃),连接方式(螺纹、法兰、对夹等)。
4.产品驱动方式:手动、蜗轮、气动、电动等。
5.产品标准:国标GB、日标JIS、美标ANSI、德标DIN、英标BS、欧标EN等。
6.报价确认:本公司提供报价清单及技术标准说明至客户确认,在双方技术各方面确认后再拟定合同。
7.阀门质量要求、质量标准、供方对质量负责的条件:按有关质量标准。