【塑料截止阀】瑞濠品牌.质量保证,瑞濠阀业全方面介绍法兰
塑料截止阀相关标准、选型、作用、结构图、规格型号;为您提供
塑料阀门外形尺寸、工作原理、产品说明书、安装维护及产品示意图;为广大用户打造高品质、高性能、高标准、高寿命、价格优惠及一整套解决方案的系列塑料截止阀。
塑料截止阀产品简述:
塑料截止阀体重量轻、耐腐蚀性强,外型结构紧凑美观,本体重量轻容易安装,耐腐蚀性强,应用范围广材质卫生,耐磨损、容易拆卸,维护简单易行,适用流体:水、空气、油类、腐蚀性化学液体。分为手动,电动。
塑料截止阀产品特点:
·塑料截止阀使用温度范围广:-40℃~140℃ 。
·具有很好的强度和韧性。
·具有优良的耐化学腐蚀性能。
·阻燃性能为自熄性。
·低热传导性能,为钢材的1/200。
·介质中重离子含量达纯水含量。
·卫生指标符合卫生标准。
·方便,可采用黏贴,螺纹,法兰,焊接等连接方式。
·正常使用情况下比一般阀门的寿命要延长很多。
·适用流体:水、空气、油类、腐蚀性化学液体。
塑料截止阀按材质可分为:
·UPVC 硬聚氯乙烯 温度-10℃~70 ℃
·CPVC 氯化聚氯乙烯 温度-40 ℃~95 ℃
·RPP 增强聚丙稀 温度-20℃~90℃
·PVDF 聚偏二氟乙烯 温度40℃~140℃
·PPH 聚丙烯 温度-20℃~95℃
·客户可以根据不同的使用环境温度来决定用哪种材质。
塑料截止阀主要材料:
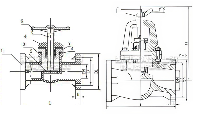
|
编号NO.
|
名称 Name
|
材质 Material
|
|
1
|
手轮
|
ABS
|
|
2
|
密封螺母
|
FRPP、PVDF、CPVC、UPVC、PPH
|
|
3
|
阀杆密封
|
PTFE
|
|
4
|
螺母盖
|
FRPP
|
|
5
|
六角螺母
|
钢
|
|
6
|
垫片
|
钢
|
|
7
|
阀盖
|
FRPP、PVDF、CPVC、UPVC、PPH
|
|
8
|
双头螺栓
|
钢
|
|
9
|
阀杆
|
钢+塑料
|
|
10
|
封盖
|
FRPP、PVDF、CPVC、UPVC、PPH
|
|
11
|
阀体
|
FRPP、PVDF、CPVC、UPVC、PPH
|
|
12
|
橡胶垫片
|
EPDM、PTFE
|
|
13
|
六角螺母
|
钢
|
|
14
|
螺母盖
|
FRPP
|
塑料截止阀外形尺寸表:
|
DN
|
尺寸
|
工作压力
|
工作压力
|
重量KG
|
|
D1
|
D2
|
L
|
H
|
T
|
N
|
Φ
|
|
25
|
85
|
115
|
160
|
200
|
16
|
4
|
14
|
0.6
|
0.97
|
|
32
|
100
|
140
|
180
|
220
|
16
|
4
|
18
|
0.6
|
1.25
|
|
40
|
110
|
150
|
200
|
250
|
18
|
4
|
18
|
0.6
|
1.60
|
|
50
|
125
|
165
|
230
|
275
|
18
|
4
|
18
|
0.6
|
2.4
|
|
65
|
145
|
185
|
290
|
350
|
22
|
8
|
18
|
0.6
|
4.5
|
|
80
|
160
|
200
|
310
|
390
|
25
|
4
|
18
|
0.6
|
5.6
|
|
100
|
180
|
220
|
350
|
400
|
25
|
8
|
18
|
0.5
|
8.8
|
|
125
|
210
|
250
|
400
|
410
|
30
|
8
|
18
|
0.5
|
12.5
|
|
150
|
240
|
285
|
475
|
430
|
30
|
8
|
23
|
0.4
|
16
|
|
200
|
295
|
340
|
600
|
480
|
35
|
12
|
23
|
0.4
|
18
|
塑料截止阀产品应用:
塑料截止阀重量轻、耐腐蚀性强,外型结构紧凑美观,本体重量轻容易安装,耐腐蚀性强,塑料截止阀应用范围广材质卫生,耐磨损、容易拆卸,维护简单易行,适用流体:水、空气、油类、腐蚀性化学液体。塑料截止阀结构, 密封性能优、能耐酸、耐碱、耐腐蚀、使用时间长,广泛应用于化工、化纤、氯碱、电力、制药、农药、染料、冶炼、食品、污水处理、海水养殖等行业。

·塑料截止阀质保体系:
有了您的信任与支持,我们提供值得信赖的Ruihao品牌产品,我们支持一系列的系统技术参数、技术指导、文件支持,实行质量跟踪、客户档案、售后保障。
·塑料截止阀产品标准:
我们的产品按相关标准验收,产品质量实行"售后跟踪"服务;随货提供"铭牌""质量证明""质保卡",产品并带有"说明书""检验报告"等相关说明。
·塑料截止阀解决方案:
瑞濠公司为工业系统和水力提供的整体方案,我们专注产品质量,把握每一个产品细节全程控制; 不仅为用户解决需求,还保障了控制系统运行可靠性,减少系统的故障及维护,不懈努力的为用户提供高品质、高性能的产品。
·塑料截止阀售后保障:
瑞濠公司实行完善的用户档案和全程服务制度,每个用户都进行全程免费技术咨询、安装指导、跟踪服务以及相关咨询服务。
瑞濠公司的阀门产品实行"三包"服务,货物到现场提供相应技术指导支持; 质保期实行12个月到24个月不等。
·塑料截止阀订购说明:
1.阀门产品:如有指定型号标准,请直播销售热线咨询价格,了解详情!
2.技术支持:如没有指定产品型号规格,请把工况要求、设计图纸、技术规范,发送传真或邮件至本公司。
3.产品订货参数:通径(DN),公称压力(Mpa),温度(℃),连接方式(螺纹、法兰、对夹等)。
4.产品驱动方式:手动、蜗轮、气动、电动等。
5.产品标准:国标GB、日标JIS、美标ANSI、德标DIN、英标BS、欧标EN等。
6.报价确认:本公司提供报价清单及技术标准说明至客户确认,在双方技术各方面确认后再拟定合同。
7.阀门质量要求、质量标准、供方对质量负责的条件:按有关质量标准。