【200X减压稳压阀】瑞濠品牌一体化解决方案,瑞濠阀业全方面介绍
200X减压稳压阀相关标准、选型、作用、结构图、规格型号;提供
水力控制阀外形尺寸、工作原理、产品说明书、安装维护及产品示意图;为广大用户打造高品质、高性能、高标准、高寿命、价格优惠及一整套解决方案的系列减压稳压阀。
200X减压稳压阀产品简述:
200X水力减压稳压阀是一种利用管道内自身压力来调控出口压力的智能型阀门。当减压阀导阀设定出口压力时,不因进口压力、流量变化而改变出口压力,将出口压力固定在设定值上。调节导阀可达到用户所需的压力范围。该200X减压稳压阀使用于消防、给排水、生活用水及其它工业给排系统管道上。减压准确,稳压性能稳定,安装调试方便。
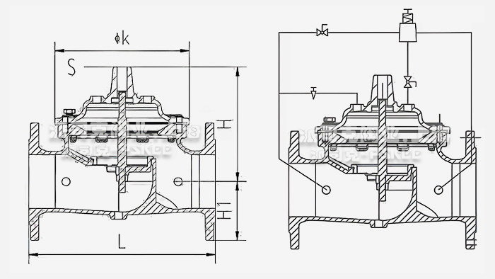
200X减压稳压阀产品结构:
200X减压稳压阀由主阀、导阀、针阀、球阀、微型过滤器和压力表组成水力控制接管系统。使用时,当定出口压力后,能自动保持稳定出口压力。本减压稳压阀利用导阀自力控制,不需要其它装置和能源,保养简便,压力控制准确度高,受进口压力和流量影响小,减压稳压可靠。本系列减压阀产品广泛用于高层建筑、生活区等供水管网系统及城市供水工程。
200X减压稳压阀工作原理:
当200X减压稳压阀从进口端给水时,水流过针阀进入主阀控制室,出口压力通过导管作用到导阀上。当减压阀出口压力高于导阀弹簧设定值时,导阀关闭。控制室停止排水,此时主阀控制室内压力升高并关闭主阀,出口压力不再升高。当减压稳压阀出口压力降到导阀弹簧设定压力时,导阀开启,控制室向下游排水。由于导阀系统排水量大于针阀的进水量,主阀控制室压力下降。进口压力使主阀开启。200X减压稳压阀在稳定状态下,控制室进水、排水相同,主阀开度不变,出口压力稳定。调节导阀弹簧即可设定出口压力。
200X减压稳压阀主要技术参数:
|
公称压力
|
1.0MPa
|
1.6 Mpa
|
2.5 Mpa
|
|
壳体试验压力
|
1.5 Mpa
|
2.4 Mpa
|
3.75 Mpa
|
|
密封试验压力
|
1.1 Mpa
|
1.76 Mpa
|
2.75 Mpa
|
|
入口压力
|
1.0 MPa
|
1.6 MPa
|
2.5 Mpa
|
|
出口压力可调节的范围
|
0.09-0.8 MPa
|
0.10-1.2 MPa
|
0.15-1.6 MPa
|
|
工作温度
|
≤80℃
|
|
适用介质
|
清水、原水
|
200X减压稳压阀外形尺寸表:
|
DN
|
50
|
65
|
80
|
100
|
125
|
150
|
200
|
250
|
300
|
350
|
400
|
450
|
500
|
600
|
|
L
|
230
|
290
|
310
|
350
|
350
|
480
|
600
|
760
|
850
|
850
|
1100
|
1100
|
1250
|
1450
|
|
H
|
139
|
159
|
179
|
214
|
214
|
333
|
407
|
476
|
526
|
526
|
624
|
624
|
720
|
835
|
|
H1
|
85
|
95
|
102
|
112
|
127
|
145
|
172
|
205
|
232
|
262
|
292
|
325
|
360
|
425
|
|
K
|
173
|
198
|
226
|
265
|
265
|
351
|
436
|
524
|
606
|
606
|
741
|
741
|
1002
|
1308
|
|
S
|
3/8
|
3/8
|
3/8
|
1/2
|
1/2
|
1/2
|
3/4
|
1
|
1
|
1
|
1-1/2
|
1-1/2
|
2
|
2
|
|
重量Kg
|
14
|
19
|
23
|
32
|
45
|
68
|
125
|
200
|
260
|
310
|
560
|
620
|
880
|
1300
|
200X减压稳压阀安装调试:
1.200X减压稳压阀主阀的安装方式是水平卧式安装,其他安装方式也可达到操作功能。安装前要清除管道内的杂物,要注意主阀体外水流标标箭头,遵循方向安装,安装后应确保没有管路应力作用在阀体及阀内部件上。
2.200X减压稳压阀前要安装一只闸阀和一只过滤器,主阀后也要装一只闸阀,以便于维修。
3.导阀与导管控制系统已于出厂前装配和调整完毕,如导阀出厂设定压力值不适合现场要求,可通过拧紧或放松导阀上端螺钉来调节,顺时针拧动螺钉为增加压力,逆时针拧动螺钉为减少压力,调节完后拧紧锁紧螺母。
4.减压阀主阀上的微型过滤器要定期清洗。
5.减压阀通水前的须冲洗管路系统。
6.减压阀对重要给水管路应安装旁通阀。

·200X减压稳压阀质保体系:
有了您的信任与支持,我们提供值得信赖的Ruihao品牌产品,我们支持一系列的系统技术参数、技术指导、文件支持,实行质量跟踪、客户档案、售后保障。
·200X减压稳压阀产品标准:
我们的产品按相关标准验收,产品质量实行"售后跟踪"服务;随货提供"铭牌""质量证明""质保卡",产品并带有"说明书""检验报告"等相关说明。
·200X减压稳压阀解决方案:
瑞濠公司为工业系统和水力提供的整体方案,我们专注产品质量,把握每一个产品细节全程控制; 不仅为用户解决需求,还保障了控制系统运行可靠性,减少系统的故障及维护,不懈努力的为用户提供高品质、高性能的产品。
·200X减压稳压阀售后保障:
瑞濠公司实行完善的用户档案和全程服务制度,每个用户都进行全程免费技术咨询、安装指导、跟踪服务以及相关咨询服务。
瑞濠公司的阀门产品实行"三包"服务,货物到现场提供相应技术指导支持; 质保期实行12个月到24个月不等。
·200X减压稳压阀订购说明:
1.阀门产品:如有指定型号标准,请直播销售热线咨询价格,了解详情!
2.技术支持:如没有指定产品型号规格,请把工况要求、设计图纸、技术规范,发送传真或邮件至本公司。
3.产品订货参数:通径(DN),公称压力(Mpa),温度(℃),连接方式(螺纹、法兰、对夹等)。
4.产品驱动方式:手动、蜗轮、气动、电动等。
5.产品标准:国标GB、日标JIS、美标ANSI、德标DIN、英标BS、欧标EN等。
6.报价确认:本公司提供报价清单及技术标准说明至客户确认,在双方技术各方面确认后再拟定合同。
7.阀门质量要求、质量标准、供方对质量负责的条件:按有关质量标准。