【106X型电磁遥控浮球阀】瑞濠品牌一体化解决方案,瑞濠阀业全方面介绍
电磁遥控浮球阀相关标准、选型、作用、结构图、规格型号;提供
水力控制阀外形尺寸、工作原理、产品说明书、安装维护及产品示意图;为广大用户打造高品质、高性能、高标准、高寿命、价格优惠及一整套解决方案的系列电磁遥控浮球阀。
106X型电磁遥控浮球阀产品简述:
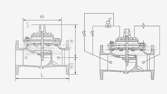
106X型电磁遥控浮球阀是在100X的基础上安装了(常闭)型电磁阀电控装置,使电磁遥控浮球阀具有双保险作用,即使停电或电浮球失灵,也能控制水位,不会让水位大过设定的位置,电动浮球阀可以设置启闭水位,解决主阀频繁启闭。控制水塔或水池的液面,保养简单,灵活耐用,液位控制准确度高,水位不受水压干扰且关闭紧密不漏水。控制阀球可与主阀体分离安装。附加电磁控制可形成二道保险,以防溢流。
106X型电磁遥控浮球阀工作原理 :
当管道从电磁遥控浮球阀的进水端给水时,由于针阀16、导阀14和浮球阀10是常开的,所以介质通过针阀16进入阀盖控制室后,又经导阀14和浮球阀10流进水箱,控制室内不能形成压力,则进入主阀盘下面的入口压力将主阀盘托起,打开主阀向水箱内大量供水,当水箱内的水位逐渐升高,浮起浮球后把浮球阀10关闭时,阀盖控制室内的水便逐渐增加压力值至把主阀盘关闭,此时便起到了自动遥控的作用。 106X型电磁遥控浮球阀产品应用:
电磁遥控浮球阀是一种可遥控操作开启或关闭的水位控制阀,该产品适用于工业、民用建筑中各种水箱、水池、水塔的液面控制系统中,具有结构新颖、设计合理、密封效果好、阻力小、流量大、灵敏度高、使用寿命长等特点,在此阀上加装手动控制装置,当停电或电路出现故障时,此阀仍可开启或关闭。
106X型电磁遥控浮球阀技术参数:
|
公称压力(Mpa)
|
壳体试验压力(MPa)
|
密封试验压力(MPa)
|
适用介质
|
介质温度(℃)
|
|
1.0
|
1.5
|
1.1
|
水
|
0-80
|
|
1.6
|
2.4
|
1.76
|
|
2.5
|
3.75
|
2.75
|
106X型电磁遥控浮球阀外形尺寸表:
|
DN
|
50
|
65
|
80
|
100
|
125
|
150
|
200
|
250
|
300
|
350
|
400
|
450
|
500
|
600
|
|
L
|
230
|
290
|
310
|
350
|
350
|
480
|
600
|
730
|
850
|
850
|
1100
|
1100
|
1250
|
1450
|
|
H
|
139
|
159
|
179
|
214
|
214
|
333
|
407
|
476
|
526
|
526
|
624
|
624
|
720
|
835
|
|
H1
|
85
|
95
|
102
|
112
|
127
|
145
|
172
|
205
|
262
|
262
|
292
|
325
|
360
|
425
|
|
K
|
173
|
198
|
226
|
265
|
265
|
351
|
436
|
524
|
606
|
606
|
741
|
741
|
1002
|
1308
|
|
S
|
3/8
|
3/8
|
3/8
|
1/2
|
1/2
|
1/2
|
3/4
|
1
|
1
|
1
|
1-1/2
|
1-1/2
|
2
|
2
|
|
Kg
|
14
|
19
|
23
|
32
|
45
|
68
|
125
|
200
|
310
|
310
|
560
|
620
|
880
|
1300
|
106X型电磁遥控浮球阀安装与调节 :
1、主阀安装于水池或高位水塔的进水管上,安装方式是水平安装在管线上,阀盖朝上,其它安装方式也可以达到操作功能。
2、安装前要清除管道内的杂物,冲洗管道。安装时要注意主阀体外水流标示箭头,遵循方向安装 。
3、电磁遥控浮球阀主阀前要装一只闸阀和一个过滤器,主阀后也要装一只闸阀,以便维修。
4、试水时要先开启主阀盖上的球阀,然后慢慢开启主阀前的闸阀,此时主阀应正常向水箱内供水,关闭电磁球阀,主阀也随之关闭。如果不能关闭,说明主阀盘下有脏物,清除脏物后再试。主阀供水时,浮球导阀也同时流水,如果用手托起浮球,浮球导阀关闭,则主阀也随之关闭,证明浮球导阀良好。
5、浮球阀装于主阀上,为出厂时包装方便,实际安装如图所示。
6、电磁遥控浮球阀主阀导管进口处的微型过滤器要2-3个月清洗一次。

·电磁遥控浮球阀质保体系:
有了您的信任与支持,我们提供值得信赖的Ruihao品牌产品,我们支持一系列的系统技术参数、技术指导、文件支持,实行质量跟踪、客户档案、售后保障。
·电磁遥控浮球阀产品标准:
我们的产品按相关标准验收,产品质量实行"售后跟踪"服务;随货提供"铭牌""质量证明""质保卡",产品并带有"说明书""检验报告"等相关说明。
·电磁遥控浮球阀解决方案:
瑞濠公司为工业系统和水力提供的整体方案,我们专注产品质量,把握每一个产品细节全程控制; 不仅为用户解决需求,还保障了控制系统运行可靠性,减少系统的故障及维护,不懈努力的为用户提供高品质、高性能的产品。
·电磁遥控浮球阀售后保障:
瑞濠公司实行完善的用户档案和全程服务制度,每个用户都进行全程免费技术咨询、安装指导、跟踪服务以及相关咨询服务。
瑞濠公司的阀门产品实行"三包"服务,货物到现场提供相应技术指导支持; 质保期实行12个月到24个月不等。
·电磁遥控浮球阀订购说明:
1.阀门产品:如有指定型号标准,请直播销售热线咨询价格,了解详情!
2.技术支持:如没有指定产品型号规格,请把工况要求、设计图纸、技术规范,发送传真或邮件至本公司。
3.产品订货参数:通径(DN),公称压力(Mpa),温度(℃),连接方式(螺纹、法兰、对夹等)。
4.产品驱动方式:手动、蜗轮、气动、电动等。
5.产品标准:国标GB、日标JIS、美标ANSI、德标DIN、英标BS、欧标EN等。
6.报价确认:本公司提供报价清单及技术标准说明至客户确认,在双方技术各方面确认后再拟定合同。
7.阀门质量要求、质量标准、供方对质量负责的条件:按有关质量标准。