【700X水泵控制阀】瑞濠品牌一体化解决方案,瑞濠阀业全方面介绍
700X水泵控制阀图例、相关标准、选型、作用、结构图、规格型号;为您提供
水力控制阀外形尺寸、工作原理、安装维护及产品说明书;为广大用户打造高品质、高性能、高标准、高寿命、价格优惠的系列水泵控制阀。
700X水泵控制阀产品简述:
700X水泵控制阀由主阀,电磁阀,针阀,球阀,单向阀,行程开关,压力表组成水力控制接管系统。700X泵浦控制阀是一种安装在高层建筑以及其他给水系统工程的水泵出口处,防止介质倒流的迸止类阀门。当水泵即将停止供水前。阀门先行快速关闭90左右, 防止突然停而产生的水锤或水击声,当水泵停止后,阀门剩佘10回水再关闭,防止的水回流,有效地保护水泵,免受回流的冲击而产生反转。该产品是水泵出口必不可少的保护装置。通过电磁阀的导控实现准确的启闭。使用可靠,有效地防止水锤和水击声,使用寿命长,安装,维修方便。
本水泵控制阀产品利用电磁阀控制,不需要其它装置和能源。节约能源,保养简便,停平稳。电磁阀可采用交流电220V或直流电24V。
700X水泵控制阀工作原理:
700X水泵控制阀作用,当水泵工作阀门向下游供水时,电磁导阀全开,针阀调至适当开度,上游水经针阀、单向阀进入主阀控制室,经电磁导阀流出,此时700X水泵控制阀主阀控制室的压力保持主阀处于合适的开度,保持下游正常供水。当水泵停止工作时,电磁导阀先关闭,主阀控制室停止排水,控制室压力升高,主阀开始关闭。当关闭至90时,主阀上部行程开关输出停泵信号,水泵停止运转。此时下游回水经单向阀进入主阀控制室,控制室压力升高,主阀被关闭。
700X水泵控制阀主要材料表:
|
零件名称
|
零件材料
|
|
阀体 阀盖
|
QT450、WCB、304
|
|
阀座 阀盘
|
2Cr13
|
|
密封圈 O型圈
|
丁腈橡胶
|
|
阀杆
|
2Cr13
|
|
弹簧
|
50CrVA
|
|
缸套 活塞(活塞型)
|
2Cr13
|
|
膜片(膜片型)
|
夹织物丁腈橡胶
|
|
泄压/持压导阀
|
铜合金
|
|
针型阀 球阀
|
铜合金
|
|
过滤器
|
不锈钢
|
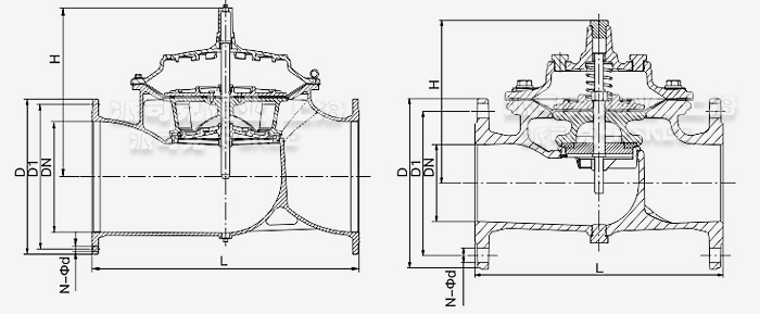
700X水泵控制阀外形尺寸表:
|
DN
|
L
|
H
|
D
|
D1
|
N-Φd
|
|
PN10
|
PN16
|
PN25
|
PN40
|
PN10
|
PN16
|
PN25
|
PN40
|
PN10
|
PN16
|
PN25
|
PN40
|
|
50
|
241
|
139
|
165
|
165
|
165
|
165
|
125
|
125
|
125
|
125
|
4-Φ19
|
4-Φ19
|
4-Φ19
|
4-Φ19
|
|
65
|
234
|
159
|
185
|
185
|
185
|
185
|
145
|
145
|
145
|
145
|
8-Φ19
|
8-Φ19
|
8-Φ19
|
8-Φ19
|
|
80
|
280
|
179
|
200
|
200
|
200
|
200
|
160
|
160
|
160
|
160
|
8-Φ19
|
8-Φ19
|
8-Φ19
|
8-Φ19
|
|
100
|
360
|
214
|
220
|
220
|
235
|
235
|
180
|
180
|
190
|
190
|
8-Φ19
|
8-Φ19
|
8-Φ23
|
8-Φ23
|
|
125
|
430
|
275
|
250
|
250
|
270
|
270
|
210
|
210
|
220
|
220
|
8-Φ19
|
8-Φ19
|
8-Φ28
|
8-Φ28
|
|
150
|
455
|
333
|
285
|
285
|
300
|
300
|
240
|
240
|
250
|
250
|
8-Φ23
|
8-Φ23
|
8-Φ28
|
8-Φ28
|
|
200
|
585
|
407
|
340
|
340
|
360
|
375
|
295
|
295
|
310
|
320
|
8-Φ23
|
12-Φ23
|
12-Φ28
|
12-Φ31
|
|
250
|
790
|
476
|
395
|
405
|
425
|
–
|
350
|
355
|
370
|
–
|
12-Φ23
|
12-Φ28
|
12-Φ31
|
–
|
|
300
|
900
|
526
|
445
|
460
|
485
|
–
|
400
|
410
|
430
|
–
|
12-Φ23
|
12-Φ28
|
16-Φ31
|
–
|
|
350
|
900
|
580
|
505
|
520
|
555
|
–
|
460
|
470
|
490
|
–
|
16-Φ23
|
16-Φ28
|
16-Φ34
|
–
|
700X水泵控制阀产品用途:
1.700X水泵控制阀由主阀、电磁导阀、针阀、球阀、单向阀、行程开关、微形过滤器和压力表组成水力控制接管系统。
3.水泵需停止工作时,先由进口压使主阀关闭90后,水泵停止运转。剩余10由回水关闭。可防止水锤现象发生。
3.本产品利用电磁导阀控制,不需要其它装置和能源。节约能源,保养简便,停泵平稳。
4.是水泵出口的保护装置。阀门呈流线型设计。通过电磁阀的导控实现准确的启闭。使用可靠,有效地防止水锤和水击声,使用寿命长,安装、维修方便。
5.本系列水泵控制阀产品广泛用于高层建筑、生活区等供水管网系统及城市供水工程。及城市供水工程。

·700X水泵控制阀质保体系:
有了您的信任与支持,我们提供值得信赖的Ruihao品牌产品,我们支持一系列的系统技术参数、技术指导、文件支持,实行质量跟踪、客户档案、售后保障。
·700X水泵控制阀产品标准:
我们的产品按相关标准验收,产品质量实行"售后跟踪"服务;随货提供"铭牌""质量证明""质保卡",产品并带有"说明书""检验报告"等相关说明。
·700X水泵控制阀解决方案:
瑞濠公司为工业系统和水力提供的整体方案,我们专注产品质量,把握每一个产品细节全程控制; 不仅为用户解决需求,还保障了控制系统运行可靠性,减少系统的故障及维护,不懈努力的为用户提供高品质、高性能的产品。
·700X水泵控制阀售后保障:
瑞濠公司实行完善的用户档案和全程服务制度,每个用户都进行全程免费技术咨询、安装指导、跟踪服务以及相关咨询服务。
瑞濠公司的阀门产品实行"三包"服务,货物到现场提供相应技术指导支持; 质保期实行12个月到24个月不等。
·700X水泵控制阀订购说明:
1.阀门产品:如有指定型号标准,请直播销售热线咨询价格,了解详情!
2.技术支持:如没有指定产品型号规格,请把工况要求、设计图纸、技术规范,发送传真或邮件至本公司。
3.产品订货参数:通径(DN),公称压力(Mpa),温度(℃),连接方式(螺纹、法兰、对夹等)。
4.产品驱动方式:手动、蜗轮、气动、电动等。
5.产品标准:国标GB、日标JIS、美标ANSI、德标DIN、英标BS、欧标EN等。
6.报价确认:本公司提供报价清单及技术标准说明至客户确认,在双方技术各方面确认后再拟定合同。
7.阀门质量要求、质量标准、供方对质量负责的条件:按有关质量标准。