【900X紧急关闭阀】瑞濠品牌一体化解决方案,瑞濠阀业全方面介绍
900X紧急关闭阀图例、相关标准、选型、作用、结构图、规格型号;为您提供
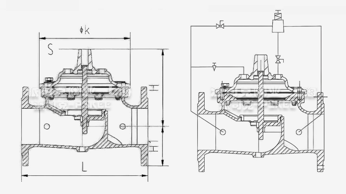
水力控制阀外形尺寸、工作原理、安装维护及产品说明书;为广大用户打造高品质、高性能、高标准、高寿命、价格优惠的系列紧急关闭阀。
900X紧急关闭阀产品概述:
900X紧急关闭阀主要用于消防系统与生活水系统的联络,当高压消防系统启动时,可自动切断生活水系统的供水,保证消防用水,比传统的单一供水更能节约成本。900X紧急关闭阀是一种用于消防与生活用水并联的供水系统中,用来调配供水方向阀门。当发生火灾时,消防急需大量用水,立即切断生活用水,确保消防用水;当消防停止用水压力减小时,阀门自动打开,呈常开状态,恢复生活供水。该控制阀使系统无需另设专门的消防单独供水管网,大大的节约了建设成本和用水量。阀门控制灵敏度高,可靠,调试简便,使用寿命长。
900X紧急关闭阀产品特点:
900X紧急关闭阀有主阀、针阀、导阀、压力表以及接管等其他管件组成是一种用于消防用水与生活用水并联的供水系统中,用来调配供水方向的阀门。当火灾发生时,消防急需大量用水,900X紧急关闭阀立即切断生活用水,确保足够的消防用水:当消防停止用水压力减小时.阀门自动打开,呈常开状态,恢复生活供水。该阀使系统无须另设专门的消防单独供水管网,大大地节约了建设成本和用水量。900X控制阀控制灵敏度高,可靠,调试简便,使用寿命长。
900X紧急关闭阀工作原理:
当紧急关闭阀主阀进出口压力低于导阀设定的压力时,导阀此时处于开通状态,主阀上盖腔内压力与主阀出口压力相等,进口与出口存在压差,水流经阀口由出口流出。当消防泵启动,或变频泵压力升高,大于导阀设定压力时,由主阀进口通向导阀控制管压力升高,作用在弹簧上的压力变大,向下压紧,带动阀芯下移,使导阀关闭,此时主900X紧急关闭阀进口压力通过节流阀不断补充到主阀阀盖上腔,因阀瓣受到向下的压力大于向上的推力,
主阀关闭。
值得注意的是,进口压力小于设定压力该阀一直处于开启状态,进口压力大于设定压力,该阀处于关闭状态。
900X紧急关闭阀技术参数:
|
公称压力(Mpa)
|
壳体试验压力(MPa)
|
密封试验压力(MPa)
|
适用介质
|
介质温度(℃)
|
|
1.0
|
1.5
|
1.1
|
水
|
0-80
|
|
1.6
|
2.4
|
1.76
|
|
2.5
|
3.75
|
2.75
|
900X紧急关闭阀主要材料表:
|
零件名称
|
零件材料
|
|
阀体 阀盖
|
QT450、WCB、304
|
|
阀座 阀盘
|
2Cr13
|
|
密封圈 O型圈
|
丁腈橡胶
|
|
阀杆
|
2Cr13
|
|
弹簧
|
50CrVA
|
|
缸套 活塞(活塞型)
|
2Cr13
|
|
膜片(膜片型)
|
夹织物丁腈橡胶
|
|
泄压/持压导阀
|
不锈钢
|
|
针型阀 球阀
|
不锈钢
|
|
过滤器
|
不锈钢
|
900X紧急关闭阀外形尺寸连接尺寸表:
|
DN
|
50
|
65
|
80
|
100
|
125
|
150
|
200
|
250
|
300
|
350
|
400
|
450
|
500
|
600
|
|
L
|
230
|
290
|
310
|
350
|
350
|
480
|
600
|
730
|
850
|
850
|
1100
|
1100
|
1250
|
1450
|
|
H
|
139
|
159
|
179
|
214
|
214
|
333
|
407
|
476
|
526
|
526
|
624
|
624
|
720
|
835
|
|
H 1
|
85
|
95
|
102
|
112
|
127
|
145
|
172
|
205
|
232
|
262
|
292
|
325
|
360
|
425
|
|
K
|
173
|
198
|
226
|
265
|
265
|
351
|
436
|
524
|
606
|
606
|
741
|
741
|
1002
|
1308
|
|
S
|
38
|
38
|
38
|
12
|
12
|
12
|
34
|
1
|
1
|
1
|
1-12
|
1-12
|
2
|
2
|
|
Kg
|
14
|
19
|
23
|
32
|
45
|
68
|
125
|
200
|
260
|
310
|
560
|
620
|
880
|
130
|
900X紧急关闭阀产品应用:
900X紧急关闭阀用于生活小区消防用水与生活用水并联的供水系统中,分隔联接消防管网与生活给水管网。平常低压时,关闭处于常开状态,供应生活用水。 当遇到消防用水时,消防泵启动管中压力升高时,阀门紧急关闭,切断生活用水,保证消防用水,当消防结束压力恢复至生活供水压力时,阀门有处于常开位置。

·900X紧急关闭阀质保体系:
有了您的信任与支持,我们提供值得信赖的Ruihao品牌产品,我们支持一系列的系统技术参数、技术指导、文件支持,实行质量跟踪、客户档案、售后保障。
·900X紧急关闭阀产品标准:
我们的产品按相关标准验收,产品质量实行"售后跟踪"服务;随货提供"铭牌""质量证明""质保卡",产品并带有"说明书""检验报告"等相关说明。
·900X紧急关闭阀解决方案:
瑞濠公司为工业系统和水力提供的整体方案,我们专注产品质量,把握每一个产品细节全程控制; 不仅为用户解决需求,还保障了控制系统运行可靠性,减少系统的故障及维护,不懈努力的为用户提供高品质、高性能的产品。
·900X紧急关闭阀售后保障:
瑞濠公司实行完善的用户档案和全程服务制度,每个用户都进行全程免费技术咨询、安装指导、跟踪服务以及相关咨询服务。
瑞濠公司的阀门产品实行"三包"服务,货物到现场提供相应技术指导支持; 质保期实行12个月到24个月不等。
·900X紧急关闭阀订购说明:
1.阀门产品:如有指定型号标准,请直播销售热线咨询价格,了解详情!
2.技术支持:如没有指定产品型号规格,请把工况要求、设计图纸、技术规范,发送传真或邮件至本公司。
3.产品订货参数:通径(DN),公称压力(Mpa),温度(℃),连接方式(螺纹、法兰、对夹等)。
4.产品驱动方式:手动、蜗轮、气动、电动等。
5.产品标准:国标GB、日标JIS、美标ANSI、德标DIN、英标BS、欧标EN等。
6.报价确认:本公司提供报价清单及技术标准说明至客户确认,在双方技术各方面确认后再拟定合同。
7.阀门质量要求、质量标准、供方对质量负责的条件:按有关质量标准。