【三通衬胶隔膜阀】瑞濠品牌.质量保证,瑞濠阀业全方面介绍G49J三通衬胶隔膜阀相关标准、选型、作用、结构图、规格型号;外形尺寸、工作原理、安装维护及产品说明书;为广大用户提供高品质、高性能、高标准、高寿命、价格优惠的系列隔膜阀。
三通衬胶隔膜阀产品简述:
G49J
三通衬胶隔膜阀用于控制非腐蚀性或一般腐蚀性介质,阀体内腔表面无衬里或覆有可供选择的多种橡胶,
隔膜阀适用于不同工作温度和流体管路。衬里材料的多样性,可适用于多种介质,并具有良好的耐腐蚀性。阀体与盖被中间隔膜隔开,使得隔膜上方的阀盖,阀杆零件不受介质侵蚀,衬胶隔膜阀是一种隔膜形式的截止阀。
三通衬胶隔膜阀结构特点:
隔膜阀是一种隔膜形式的截止阀;
1、弹性密封的开闭件,确保没有内漏;
2、流线型的流道,使得压力损失小;
3、没有填料函,因此没有外漏;
4、阀体与盖被中间隔膜隔开,使得隔膜上方的阀盖,阀杆零件不受介质侵蚀;
5、隔膜可更换,维护费用低;
6、衬里材料的多样性,可适用于各种介质,并具有良好的耐腐蚀性。
三通衬胶隔膜阀主要材料:
|
名称
|
阀体
|
阀盖
|
阀瓣
|
手轮
|
隔膜
|
阀杆
|
|
材料
|
铸铁、不锈钢
|
铸铁
|
铸铁
|
铸铁
|
天然胶、丁基胶等
|
碳钢
|
三通衬胶隔膜阀性能规范:
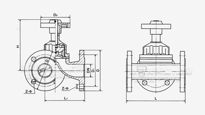
三通衬胶隔膜阀外形尺寸:
|
公称通径(DN)
|
公称压力
|
工作压力
|
L
|
L1
|
D
|
D1
|
Z-Φ
|
H
|
Do
|
重量(Kg)
|
|
25
|
1.0
|
1.0
|
160
|
95
|
15
|
85
|
4-14
|
116
|
85
|
5.5
|
|
32
|
180
|
118
|
135
|
100
|
4-18
|
153
|
120
|
8.5
|
|
40
|
200
|
135
|
145
|
110
|
4-18
|
167
|
120
|
12.5
|
|
50
|
230
|
150
|
160
|
125
|
4-18
|
198
|
120
|
17
|
|
65
|
290
|
182
|
180
|
145
|
4-18
|
234
|
165
|
24.5
|
|
80
|
310
|
210
|
195
|
160
|
4-18
|
256
|
230
|
33.5
|
|
100
|
350
|
245
|
220
|
180
|
8-18
|
329
|
280
|
37.5
|
|
采用标准
|
设计与制造:GB12230; 结构长度:GB12221(系列1)
|
三通衬胶隔膜阀产品用途:
三通式衬胶隔膜阀用途:本阀用于控制非腐蚀性或一般腐蚀性介质,阀体内腔表面无衬里或覆有可供选择的各种橡胶,适用于不同工作温度和流体管路。

·三通衬胶隔膜阀质保体系:
有了您的信任与支持,我们提供值得信赖的Ruihao品牌产品,我们支持一系列的系统技术参数、技术指导、文件支持,实行质量跟踪、客户档案、售后保障。
·三通衬胶隔膜阀产品标准:
我们的产品按相关标准验收,产品质量实行"售后跟踪"服务;随货提供"铭牌""质量证明""质保卡",产品并带有"说明书""检验报告"等相关说明。
·三通衬胶隔膜阀解决方案:
瑞濠公司为工业系统和水力提供的整体方案,我们专注产品质量,把握每一个产品细节全程控制; 不仅为用户解决需求,还保障了控制系统运行可靠性,减少系统的故障及维护,不懈努力的为用户提供高品质、高性能的产品。
·三通衬胶隔膜阀售后保障:
瑞濠公司实行完善的用户档案和全程服务制度,每个用户都进行全程免费技术咨询、安装指导、跟踪服务以及相关咨询服务。
瑞濠公司的阀门产品实行"三包"服务,货物到现场提供相应技术指导支持; 质保期实行12个月到24个月不等。
·三通衬胶隔膜阀订购说明:
1.阀门产品:如有指定型号标准,请直播销售热线咨询价格,了解详情!
2.技术支持:如没有指定产品型号规格,请把工况要求、设计图纸、技术规范,发送传真或邮件至本公司。
3.产品订货参数:通径(DN),公称压力(Mpa),温度(℃),连接方式(螺纹、法兰、对夹等)。
4.产品驱动方式:手动、蜗轮、气动、电动等。
5.产品标准:国标GB、日标JIS、美标ANSI、德标DIN、英标BS、欧标EN等。
6.报价确认:本公司提供报价清单及技术标准说明至客户确认,在双方技术各方面确认后再拟定合同。
7.阀门质量要求、质量标准、供方对质量负责的条件:按有关质量标准。