【常开型气动管夹阀】瑞濠品牌.质量保证,瑞濠阀业全方面介绍GJ6K41X常开型气动管夹阀相关标准、选型、作用、结构图、规格型号;外形尺寸、工作原理、安装维护及产品说明书;为广大用户提供高品质、高性能、高标准、高寿命、价格优惠的系列气动管夹阀。
常开型气动管夹阀产品简述:
常开型气动管夹阀在国内又称为
夹管阀、
气囊阀、
箍断阀等。管夹阀的套管重要的零件,抗腐蚀、抗磨损和承压能力。用气动、电动、手动或者液动等驱动方式挤压套管,达到开关或调节的作用。常开型管夹阀产品特点:耐磨、防腐、抗冻、密封性能好,只须更换胶套即完好如新,阀体可长期使用,寿命长.
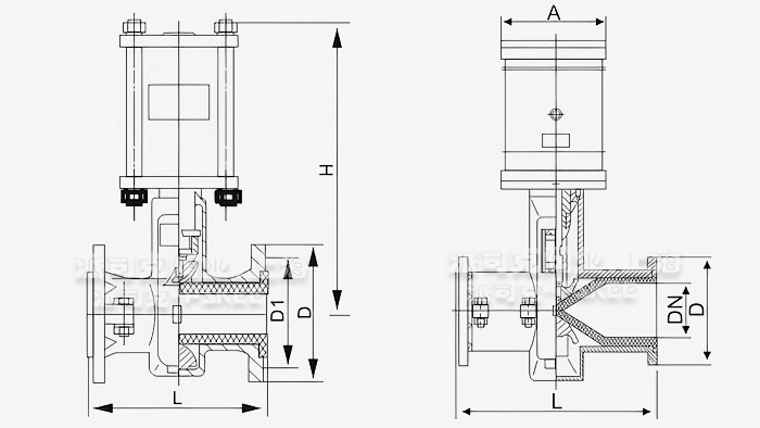
常开型气动管夹阀产品结构:
常开型气动管夹阀是为了满足客户工况要求阀门,由上下铸铁、铸钢阀体、橡胶管套、大小阀杆、闸板、上下导柱、气动装置等零件组成,也可根据需要选择驱动装置。
常开型气动管夹阀产品性能:
常开型气动管夹阀其基本工作原理是:利用阀体同橡胶管套间的气压使管套变形合拢使流体截断。
气动管夹阀无压力损失、无堵塞、无泄露,低耗气、防水锤等,适用于含颗粒的液--固及气--固二相流,橡胶管采用高弹性、高耐磨、耐疲劳的橡胶制作。
常开型气动管夹阀特点:
◆ 管阀同径 : 常开型气动管夹阀结构简单,橡胶套内径与管道相同,局部阻力损失小。
◆ 无 泄 漏 :无密封点,控制介质空间和阀门通道隔离,不会发生内外泄漏现象。
◆ 含杂关闭 : 依靠橡胶套变形实现启闭,即使流体含固体颗粒或纤维杂质也不会阻塞,均可迅速地将其包裹关闭。
◆ 适用面广 :结构简单,仅三个部件,可代替体积大、结构复杂的阀门,适用于有防爆要求的场合。
◆ 使用寿命长 :含增强帘布的橡胶管套,能够经受高频率的启闭作业,耐酸、碱和化学介质,具有很长的使用寿命。
◆ 安装简单 :阀门安装无方向性,使用管道无需清洗,一旦橡胶套损坏,更换简单迅速。
◆ 控制方便 :根据需要可实现就地或远距离自动化操作控制。
常开型气动管夹阀主要材料表:
|
名称
|
材料
|
|
阀体
|
铝合金
|
|
套管
|
橡胶
|
|
阀杆
|
铸铜、碳钢
|
|
缸体
|
碳钢
|
|
压杆
|
碳钢
|
|
活塞
|
球墨铸铁
|
|
托架
|
球墨铸铁
|
常开型气动管夹阀外表尺寸表:
|
工作压力Mpa
|
公称通径
|
L
|
L1
|
D
|
D1
|
Z-Φ
|
|
0.6
|
25
|
160
|
124
|
115
|
85
|
4-14
|
|
32
|
165
|
145
|
140
|
100
|
4-18
|
|
40
|
190
|
157
|
150
|
110
|
4-18
|
|
50
|
210
|
160
|
160
|
125
|
4-18
|
|
65
|
250
|
199
|
180
|
145
|
4-18
|
|
80
|
300
|
222
|
195
|
160
|
4-18
|
|
100
|
350
|
250
|
215
|
180
|
8-18
|
|
125
|
430
|
318
|
245
|
210
|
8-18
|
|
150
|
500
|
350
|
280
|
240
|
8-23
|
|
200
|
650
|
446
|
335
|
295
|
8-23
|
|
0.4
|
250
|
800
|
516
|
395
|
350
|
12-23
|
|
300
|
950
|
562
|
445
|
400
|
12-23
|
常开型气动管夹阀注意事项:
1:压缩空气的杂质和水份影响胶套的使用寿命,应在气路中设置过滤器,除去杂质和水份。
2:常开型气动管夹阀在配管时充分清除管道和接头中的杂质、切屑粉末等。
3:维修保养胶套时,务必事先关闭供气阀门,并将启动回路中的压缩空气排尽后,方可进入维修作业。
4:避免气阀胶套发生冻结,应该在摄氏5℃以下使用时,应使用干燥器处理干燥空气。
常开型气动管夹阀适用范围:
常开型气动管夹阀适用于化工,石油、发电、碱厂、选矿、水泥、选煤、非金属等行业,可快速控制管路浓度砂粒状流量与截止。适用于有纸浆、污水、矿渣、煤渣、泥沙等。适用温度-30-85度,更高温度另行定制。
常开型气动管夹阀(夹管阀)在当代工业中,常有一些含有颗粒、粉末、纤维、粘浆等磨损性物质的固体或液体产品经由管道输送,或者一些化学过程中带有腐蚀性的介质时,管夹阀(夹管阀)就是选择。

·气动管夹阀质保体系:
有了您的信任与支持,我们提供值得信赖的Ruihao品牌产品,我们支持一系列的系统技术参数、技术指导、文件支持,实行质量跟踪、客户档案、售后保障。
·气动管夹阀产品标准:
我们的产品按相关标准验收,产品质量实行"售后跟踪"服务;随货提供"铭牌""质量证明""质保卡",产品并带有"说明书""检验报告"等相关说明。
·气动管夹阀解决方案:
瑞濠公司为工业系统和水力提供的整体方案,我们专注产品质量,把握每一个产品细节全程控制; 不仅为用户解决需求,还保障了控制系统运行可靠性,减少系统的故障及维护,不懈努力的为用户提供高品质、高性能的产品。
·气动管夹阀售后保障:
瑞濠公司实行完善的用户档案和全程服务制度,每个用户都进行全程免费技术咨询、安装指导、跟踪服务以及相关咨询服务。
瑞濠公司的阀门产品实行"三包"服务,货物到现场提供相应技术指导支持; 质保期实行12个月到24个月不等。
·气动管夹阀订购说明:
1.阀门产品:如有指定型号标准,请直播销售热线咨询价格,了解详情!
2.技术支持:如没有指定产品型号规格,请把工况要求、设计图纸、技术规范,发送传真或邮件至本公司。
3.产品订货参数:通径(DN),公称压力(Mpa),温度(℃),连接方式(螺纹、法兰、对夹等)。
4.产品驱动方式:手动、蜗轮、气动、电动等。
5.产品标准:国标GB、日标JIS、美标ANSI、德标DIN、英标BS、欧标EN等。
6.报价确认:本公司提供报价清单及技术标准说明至客户确认,在双方技术各方面确认后再拟定合同。
7.阀门质量要求、质量标准、供方对质量负责的条件:按有关质量标准。