【气动奥衬
管夹阀】瑞濠品牌.质量保证,瑞濠阀业全方面介绍G641X气动
奥衬管夹阀相标准、选型、作用、结构图、规格型号;外形尺寸、工作原理、安装维护及产品说明书;为广大用户提供高品质、高性能、高标准、高寿命、价格优惠的系列手动管夹阀。
气动奥衬管夹阀产品简述:
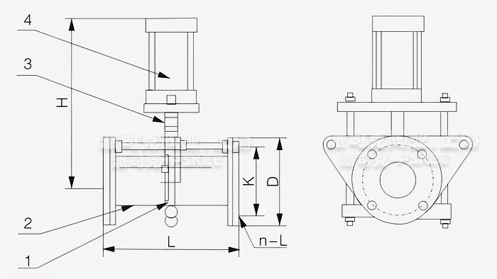
奥衬管夹阀由阀体、橡胶管套、阀杆、上下压板、拉杆、气动头等零件组成。气动头通气时,使阀杆向下运动来带动上下压板以压缩管套进行关闭,反之即开启。压板在拉杆之间上下往复运动完成阀门开闭工作。
气动奥衬管夹阀产品特点:
1.气动管夹阀无压力、无堵塞、无泄漏、防水撞冲击
2.适用于含颗粒的液--固及气--固二相流
3.橡胶管套带有增强结构,耐磨。
气动奥衬管夹阀主要材料:
|
名称
|
材料
|
|
阀体
|
碳钢
|
|
套管
|
橡胶
|
|
阀杆
|
铸铜、碳钢
|
|
压杆
|
铸铁
|
|
手轮
|
铸铁
|
|
托架
|
球墨、铸铁
|
气动奥衬管夹阀外形尺寸表:
|
口径DN
|
L
|
H
|
D
|
K
|
n-L
|
|
50
|
210
|
215
|
160
|
125
|
4-18
|
|
65
|
250
|
245
|
180
|
145
|
4-18
|
|
80
|
300
|
270
|
195
|
160
|
4-18
|
|
100
|
350
|
300
|
215
|
180
|
8-18
|
|
125
|
430
|
340
|
245
|
210
|
8-18
|
|
150
|
500
|
390
|
280
|
240
|
8-23
|
|
200
|
650
|
520
|
335
|
295
|
12-23
|
|
250
|
800
|
615
|
390
|
350
|
12-23
|
|
300
|
950
|
720
|
440
|
400
|
12-23
|
|
350
|
830
|
800
|
500
|
460
|
16-23
|
|
400
|
300
|
900
|
565
|
575
|
16-25
|
|
500
|
1100
|
1150
|
670
|
620
|
20-25
|
气动奥衬管夹阀注意事项:
因橡胶管套承受压力小,所以在开闭时,操作人员旋转手机时只要感到适量抵触,均达到开闭点,切勿尽力及多人辅助,禁用其它工具开闭。
气动奥衬管夹阀应用领域:
管夹阀在当代工业中,常用一些含有颗粒、粉末、纤维、粘浆等磨损性物质的固体或液体产品经由管道输送,或者一些化学过程中带有腐蚀性的介质时,夹管阀就是选择。
奥衬管夹阀可用于:污水处理厂(污泥处理、沙砾清理、原污水、石灰、炭泥)电厂(FGD系统、除灰系统、煤输送)采矿(尾矿、浮选控制、排泥管线、尾矿充填、各种其他浆液) 化学过程(腐蚀性和磨损性介质、粉末、颗粒)以及造纸厂、纸浆厂、电子工业、食品工业、水泥、沙子、玻璃和工业污水处理厂等很多领域。
气动奥衬管夹阀产品用途:
适用介质:水泥、简仓、沙粒、矿物材料、石灰石, 土,泥灰土、砂浆、矿浆等。夹管阀适用于各种气动输送系统,其它系列管夹阀应用领域包括水泥料仓、色素和颗粒处理、陶瓷、玻璃和塑料工业、污水处理、制药工业、食品工业以及葡萄酒酿造业。

·气动奥衬管夹阀质保体系:
有了您的信任与支持,我们提供值得信赖的Ruihao品牌产品,我们支持一系列的系统技术参数、技术指导、文件支持,实行质量跟踪、客户档案、售后保障。
·气动奥衬管夹阀产品标准:
我们的产品按相关标准验收,产品质量实行"售后跟踪"服务;随货提供"铭牌""质量证明""质保卡",产品并带有"说明书""检验报告"等相关说明。
·气动奥衬管夹阀解决方案:
瑞濠公司为工业系统和水力提供的整体方案,我们专注产品质量,把握每一个产品细节全程控制; 不仅为用户解决需求,还保障了控制系统运行可靠性,减少系统的故障及维护,不懈努力的为用户提供高品质、高性能的产品。
·气动奥衬管夹阀售后保障:
瑞濠公司实行完善的用户档案和全程服务制度,每个用户都进行全程免费技术咨询、安装指导、跟踪服务以及相关咨询服务。
瑞濠公司的阀门产品实行"三包"服务,货物到现场提供相应技术指导支持; 质保期实行12个月到24个月不等。
·气动奥衬管夹阀订购说明:
1.阀门产品:如有指定型号标准,请直播销售热线咨询价格,了解详情!
2.技术支持:如没有指定产品型号规格,请把工况要求、设计图纸、技术规范,发送传真或邮件至本公司。
3.产品订货参数:通径(DN),公称压力(Mpa),温度(℃),连接方式(螺纹、法兰、对夹等)。
4.产品驱动方式:手动、蜗轮、气动、电动等。
5.产品标准:国标GB、日标JIS、美标ANSI、德标DIN、英标BS、欧标EN等。
6.报价确认:本公司提供报价清单及技术标准说明至客户确认,在双方技术各方面确认后再拟定合同。
7.阀门质量要求、质量标准、供方对质量负责的条件:按有关质量标准。