【盖米型法兰气动角座阀】瑞濠品牌.质量保证,瑞濠阀业全方面介绍盖米型法兰气动角座阀相关标准、选型、作用、结构图、规格型号;外形尺寸、工作原理、安装维护及产品说明书;为广大用户提供高品质、高性能、高标准、高寿命、价格优惠的系列盖米气动角座阀。
盖米法兰气动角座阀产品简述:
盖米型气动
角座阀恰好能避免水锤效应,具有良好的防水锤功能。可为您的管道和设备的使用带来保障。同时,此款
盖米角座阀还可以配电磁阀,接近开关,具流量调节及信号反馈功能的定位器
。盖米型气动角座阀配4-20Am信号输出与信号反馈流量调节功能YT-1000L定位器附件,使用于饮料酿酒厂发酵罐反应釜出料口处进行出料流量调节。
盖米法兰气动角座阀产品结构:
盖米法兰气动角座阀保持流速能够节省空间,它采用带弹簧保护的气动执行机构来操作的导向角座阀,使用时,应该选择常开或常闭。角座阀产品由不锈钢铸造和聚四氟乙烯密封,可用于大多数气体、液体、蒸汽和腐蚀性场合,具有较长寿命。
盖米法兰气动角座阀技术参数:
阀体材质 不锈钢304、316
密封材质 四氟(PTFE)、不锈钢
适用介质 气体、蒸汽、水、乳制品、饮料、酒液、酸碱溶剂、化学溶剂等
介质温度 -30℃-+260℃
公称压力 PN16/25
控制方式 单作用常闭、单作用常开、双作用不带弹簧
汽缸材质 不锈钢
盖米法兰气动角座阀产品特点:
1.结构紧凑,重量轻
2.流量大,阻力小,无水锤作用
3.使用寿命长,免维护密封
4.先导汽缸
5.气管接口可360度旋转
6.阀头可拆卸维护方便
7.双道活塞环使用寿命更长,气缸密封性能控制功能好
8.4Mpa水压出厂检测,用户更放心
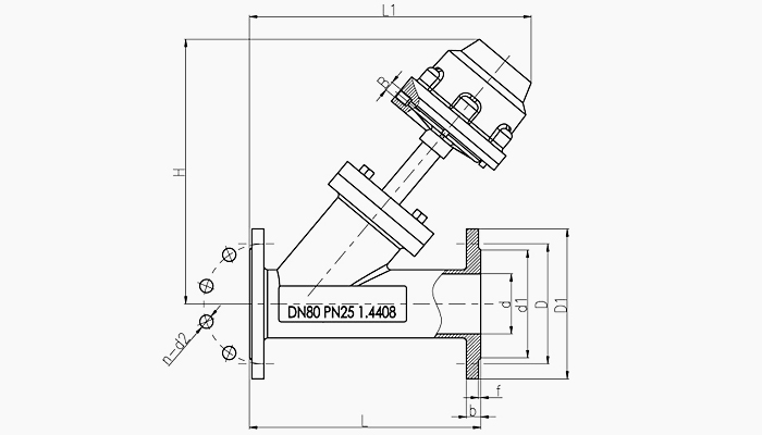
盖米法兰气动角座阀外形连接尺寸表:
|
DN
|
L
|
L1
|
b
|
f
|
Φd
|
Φd1
|
Φd2
|
ΦD
|
ΦD1
|
H
|
|
DN65
|
290
|
390
|
20
|
3
|
65
|
122
|
4~18
|
145
|
180
|
300
|
|
DN80
|
310
|
400
|
20
|
3
|
80
|
138
|
8~18
|
160
|
195
|
310
|
|
DN100
|
350
|
420
|
22
|
3
|
95
|
158
|
8~18
|
180
|
215
|
330
|
盖米法兰气动角座阀产品性能:
盖米不锈钢气动角座阀系列外部先导控制由单作用或双作用活塞执行机构驱动,执行采用不锈钢板材一次冲压成型,不锈钢抛光处理,外观更精美。盖米角座阀采用不锈钢两通阀体,流量大,可靠的自调整填料密封提供了高密封性。该角座阀免维护耐用可添加各种附件,从而具有位置指示、行程限位或手动开关等功能。

·盖米法兰式气动角座阀质保体系:
有了您的信任与支持,我们提供值得信赖的Ruihao品牌产品,我们支持一系列的系统技术参数、技术指导、文件支持,实行质量跟踪、客户档案、售后保障。
·盖米法兰式气动角座阀产品标准:
我们的产品按相关标准验收,产品质量实行"售后跟踪"服务;随货提供"铭牌""质量证明""质保卡",产品并带有"说明书""检验报告"等相关说明。
·盖米法兰式气动角座阀解决方案:
瑞濠公司为工业系统和水力提供的整体方案,我们专注产品质量,把握每一个产品细节全程控制; 不仅为用户解决需求,还保障了控制系统运行可靠性,减少系统的故障及维护,不懈努力的为用户提供高品质、高性能的产品。
·盖米法兰式气动角座阀售后保障:
瑞濠公司实行完善的用户档案和全程服务制度,每个用户都进行全程免费技术咨询、安装指导、跟踪服务以及相关咨询服务。
瑞濠公司的阀门产品实行"三包"服务,货物到现场提供相应技术指导支持; 质保期实行12个月到24个月不等。
·盖米法兰式气动角座阀订购说明:
1.阀门产品:如有指定型号标准,请直播销售热线咨询价格,了解详情!
2.技术支持:如没有指定产品型号规格,请把工况要求、设计图纸、技术规范,发送传真或邮件至本公司。
3.产品订货参数:通径(DN),公称压力(Mpa),温度(℃),连接方式(螺纹、法兰、对夹等)。
4.产品驱动方式:手动、蜗轮、气动、电动等。
5.产品标准:国标GB、日标JIS、美标ANSI、德标DIN、英标BS、欧标EN等。
6.报价确认:本公司提供报价清单及技术标准说明至客户确认,在双方技术各方面确认后再拟定合同。
7.阀门质量要求、质量标准、供方对质量负责的条件:按有关质量标准。